Opis projektu
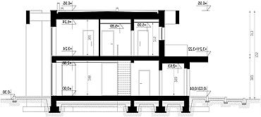
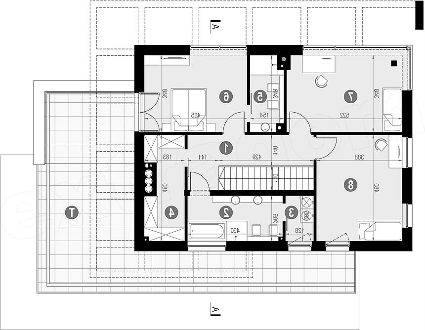
HomeKoncept-34 wyróżnia się on nowoczesnym, wyrazistym charakterem bryły podkreślonym unikatowym belkowaniem. Niecodzienny styl tego domu wyrażony jest prostą i czytelną bryłą oraz geometrycznym detalem. Modernistyczną formę podkreśla wykończenie elewacji skomponowane w tonacji bieli i szarości połączone z ciemną stolarką okienną. Ta efektowna bryła skrywa bardzo funkcjonalne wnętrze. Parter to przede wszystkim przestronna strefa dzienna z centralnie umieszczonym kominkiem. Otwarta kuchnia, jadalnia i przestronny salon tworzą jedno pomieszczenie. Unikatowe, narożne przeszklenie ukazuje panoramiczny widok ogrodu i wspaniale doświetla wnętrze. Obok salonu zaprojektowaliśmy ustawny gabinet z wyjściem na taras, oraz szereg funkcjonalnych pomieszczeń dodatkowych – przy kuchni jest to spiżarnia, a przy garażu pomieszczenie gospodarcze z wejściem od zewnątrz. Poddasze stanowi nocną strefę domowników. Zaprojektowaliśmy tutaj trzy sypialnie (w tym sypialnię małżeńską z własną łazienką oraz dostępem do pięknego tarasu), drugą łazienką z wydzieloną częścią na pralnię oraz wspólną garderobę. W projekcie HomeKoncept-34 zachwycają nietypowe, dwukondygnacyjne przeszklenia. Układ okien oraz ich powierzchnia są gwarancją jasnych, pełnych naturalnego światła wnętrz. Nad jednostanowiskowym garażem powstał przestronny i bardzo przyjemny taras zwieńczony białą, ozdobną pergolą.
