Opis projektu
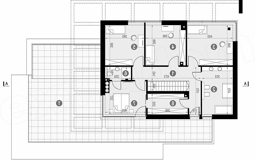
HomeKoncept-30 to projekt dużego domu o nowoczesnym charakterze. Wyróżnia go wyjątkowa bryła, którą okala unikatowe belkowanie, nadające całości niezwykłego szyku i elegancji. Idealnie skomponowana elewacja utrzymana w tonacji bieli i szarości oraz ciemna stolarka okienna podkreślają modernistyczny charakter budynku. Ta efektowna bryła skrywa bardzo funkcjonalne wnętrze. Parter to przede wszystkim przestronna strefa dzienna z kuchnią otwierającą się na jadalnię i przestronny salon. Uwagę przyciąga narożne okno, które ukazuje nam panoramiczny widok ogrodu. Nieco na uboczu zaprojektowaliśmy przestronny gabinet z wyjściem na taras. Pomieszczenie to może również pełnić funkcję pokoju gościnnego. Nie zapomnieliśmy również o tak istotnych pomieszczeniach jak wygodna spiżarnia zlokalizowana przy kuchni oraz duże pomieszczenie gospodarcze przy garażu. Kotłownia, dzięki odpowiedniej powierzchni, może zostać przystosowana pod ogrzewanie paliwem stałym. Poddasze stanowi prywatną, intymną strefę domowników. Zaprojektowaliśmy tutaj cztery sypialnie (w tym sypialnię małżeńską z wyjściem na obszerny taras) dwie łazienki oraz dużą garderobę. Warto podkreślić, że na taras dostaniemy się również wyjściem z korytarza oraz łazienki. Ogromnym atutem tego projektu są nietypowe, dwukondygnacyjne przeszklenia. Układ okien oraz ich powierzchnia są gwarancją jasnych, pełnych naturalnego światła wnętrz. Nad dwustanowiskowym garażem powstał duży, reprezentacyjny taras z atrakcyjną pergolą, stanowiącą element dekoracyjny całego domu. Aranżacja pięknej zieleni w tym miejscu pozwoli na wykreowanie wyjątkowego miejsca do wypoczynku i relaksu.
