Opis projektu
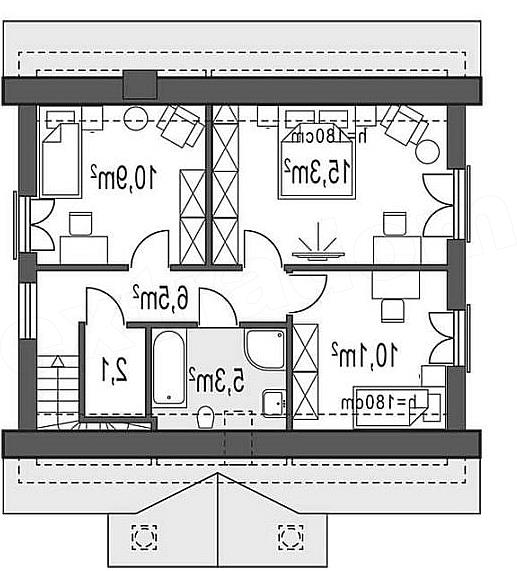
Wygodny i funkcjonalny dom. Na parterze znajduje się część dzienna. Kuchnia jest otwarta na pokój dzienny, a ten na taras ogrodowy. Wejście do domu zadaszone i wsparte na klasycznych kolumnach. W wygodnym wiatrołapie jest miejsce na szafy. Na parterze poza pomieszczeniem c.o. znajduje się pralnia-suszarnia, którą w wersji z ogrzewaniem gazowym można połączyć z c.o. tworząc jedno duże wygodne pomieszczenie. Na poddaszu trzy wygodne sypialnie, łazienka i garderoba.
