Opis projektu
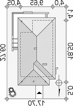
Budynek mieszkalny, jednorodzinny, parterowy przeznaczony dla 3-osobowej rodziny. Na parterze zaprojektowano dwie sypialnie, dwie łazienki, kotłownię, spiżarnię, kuchnię oraz pokój dzienny z jadalnią. Z pokoju dziennego mamy wyjście na przestronny, częściowo zadaszony taras.
