Projekt domu G92 - Budynek gospodarczy PRA1106

kontakt - projekty domów | projektydomow.domiporta.pl

Joanna Skoczylas - Kunda

Porady, oferty, zamówienia

Jak zamówić projekt?

22 451 01 70

pn-pt 8-22, sb 10-18

Pow. użytkowa 203,79 m2 Kubatura 1250 m3 Wysokość domu 6,11 m
Pow. zabudowy 225 m2 Min. szer. działki 33 m Kąt nach. dachu 7 st
Projekt domu G92 - Budynek gospodarczy progress

Opis projektu

Projekt budynku parterowego, niepodpiwniczonego, z dwoma pomieszczeniami gospodarczymi. Do projektu dołączone jest zestawienie: stali, więźby dachowej oraz stolarki drzwiowej i okiennej, jak również bezpłatna zgoda na dokonanie zmian.

Kup teraz projekt

Cena: 1950 zł

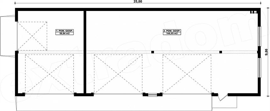
Rzut kondygnacji projektu G92 - Budynek gospodarczy - Rzut parteru

1 garaż jednostanowiskowy: 56,84 m2
2 garaż dwustanowiskowy: 146,95 m2

Przekrój

Technologia budowy domu


Budynek wykonany w technologii tradycyjnej. Ściany warstwowe grubości 29cm, murowane z z pustaków ceramicznych „MAX” grubości 19cm, ocieplone styropianem grubości 10cm. Ściany wewnętrzne z pustaków ceramicznych „MAX” grubości 25cm .Bramy o wymiarach 3,00×3,00m 5,00×4,00m. Komin z cegły ceramicznej pełnej. Słupy i podciągi żelbetowe. Więźba dachowa jednospadowa, drewniana, pokryta blachą trapezową.

Elewacje

autor: Kup Projekt

Projekty podobne do G92 - Budynek gospodarczy PRA1106

Serwis prowadzi Extradom.plRegulaminPolityka prywatności