Projekt domu G238 garażu / magazyn z pomieszczeniami gospodarczymi SLN1702

kontakt - projekty domów | projektydomow.domiporta.pl

Joanna Skoczylas - Kunda

Porady, oferty, zamówienia

Jak zamówić projekt?

22 451 01 70

pn-pt 8-22, sb 10-18

Pow. użytkowa 239 m2 Kubatura 1527 m3 Wysokość domu 6,38 m
Pow. zabudowy 264 m2 Min. szer. działki 29 m Kąt nach. dachu 3 st
Pow. dachu 261,5 m2
Projekt domu G238 garażu / magazyn z pomieszczeniami gospodarczymi progress

Opis projektu

Garaż / magazyn z pomieszczeniami gospodarczymi.

Kup teraz projekt

Cena: 2490 zł

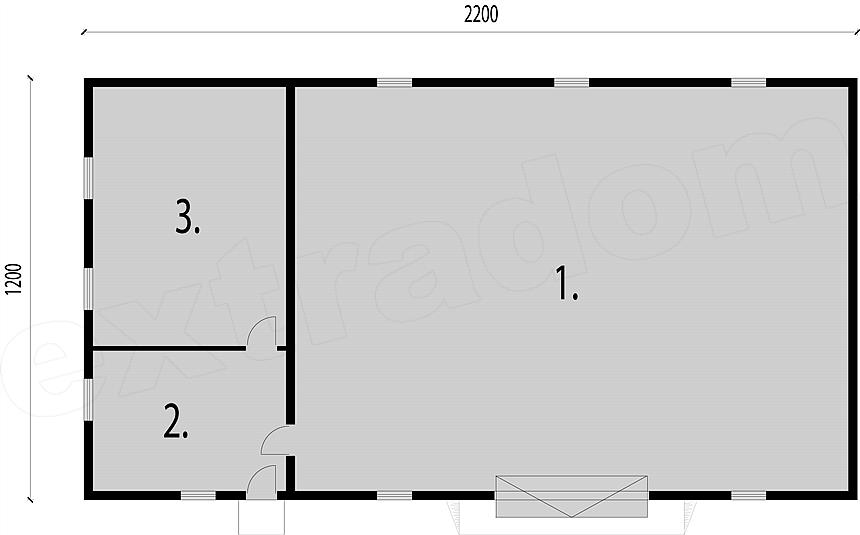
Rzut kondygnacji projektu G238 garażu / magazyn z pomieszczeniami gospodarczymi - Rzut parteru

1 garaż jednostanowiskowy: 181,5 m2
2 pomieszczenie gospodarcze: 22 m2
3 pomieszczenie gospodarcze: 40,5 m2

Koszt budowy domu


Orientacyjny koszt budowy domu w stanie surowym zamkniętym bez instalacji: 305 920 zł.

Technologia budowy domu


Technologia tradycyjna. Ściany zewnętrzne nośne murowane grubości 25 cm. Wszystkie ściany wykonane z pustaków ceramicznych. Więźba dachowa drewniana. Pokrycie dachu papa. Wymiar bramy garażowej 4,4 x 3,5 m.

Elewacje

autor: Pro arte Arkadiusz Woch, Krzysztof Biodrowicz spółka jawna

Projekty podobne do G238 garażu / magazyn z pomieszczeniami gospodarczymi SLN1702

Serwis prowadzi Extradom.plRegulaminPolityka prywatności