Projekt domu G356 - Budynek garażowo - gospodarczy PRA1378

kontakt - projekty domów | projektydomow.domiporta.pl

Joanna Skoczylas - Kunda

Porady, oferty, zamówienia

Jak zamówić projekt?

22 451 01 70

pn-pt 8-22, sb 10-18

Pow. użytkowa 106,86 m2 Kubatura 642,7 m3 Wysokość domu 5,83 m
Pow. zabudowy 120 m2 Kąt nach. dachu 7 st
Projekt domu G356 - Budynek garażowo - gospodarczy progress

Opis projektu

Projekt garażu dwustanowiskowego, parterowego, niepodpiwniczonego, przeznaczonego dla samochodów dostawczych z dwoma pomieszczeniami gospodarczymi. Do projektu dołączone jest zestawienie: stali, więźby dachowej oraz stolarki drzwiowej i okiennej, jak również bezpłatna zgoda na dokonanie zmian.

Kup teraz projekt

Cena: 990 zł

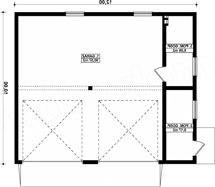
Rzut kondygnacji projektu G356 - Budynek garażowo - gospodarczy - Rzut parteru

1 garaż dwustanowiskowy: 90,57 m2
2 pomieszczenie gospodarcze: 8,17 m2
3 pomieszczenie gospodarcze: 8,08 m2

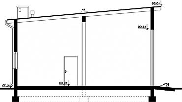
Przekrój

Technologia budowy domu


Budynek wykonany w technologii tradycyjnej. Ściany murowane z bloczków z betonu komórkowego grubości 24cm. Bramy o wymiarach 4,00×4,00m. Więźba dachowa jednospadowa, drewniana, pokryta blachą trapezową.

Elewacje

autor: Kup Projekt
Serwis prowadzi Extradom.plRegulaminPolityka prywatności