Opis projektu
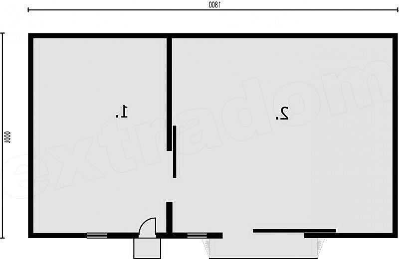
Garaż z pomieszczeniem gospodarczym.
Joanna Skoczylas - Kunda
Porady, oferty, zamówienia
22 451 01 70
pn-pt 8-22, sb 10-18
| Pow. użytkowa | 163,88 m2 | Kubatura | 916 m3 | Wysokość domu | 5,64 m |
| Pow. zabudowy | 180 m2 | Min. szer. działki | 24 m | Kąt nach. dachu | 3 st |
| Pow. dachu | 180 m2 | ||||
Garaż z pomieszczeniem gospodarczym.
Cena: 1890 zł
|
|
|