Projekt domu G213 garaż dwustanowiskowy z pomieszczeniami gospodarczymi SLN1295

kontakt - projekty domów | projektydomow.domiporta.pl

Joanna Skoczylas - Kunda

Porady, oferty, zamówienia

Jak zamówić projekt?

22 451 01 70

pn-pt 8-22, sb 10-18

Pow. użytkowa 55,03 m2 Kubatura 487 m3 Wysokość domu 6,27 m
Pow. zabudowy 64 m2 Min. szer. działki 18,89 m Kąt nach. dachu 30 st
Pow. dachu 135 m2
Projekt domu G213 garaż dwustanowiskowy z pomieszczeniami gospodarczymi progress

Opis projektu

Garaż jednostanowiskowy z jednostanowiskową wiatą oraz pomieszczeniami gospodarczymi.Brama garażowa o wymiarach 3,0x3,0m.

Kup teraz projekt

Cena: 990 zł

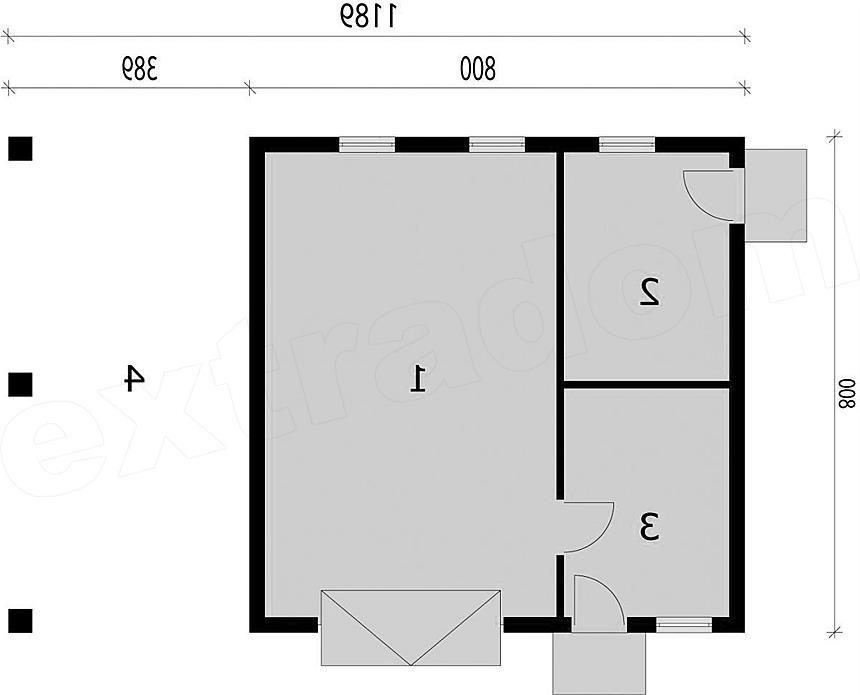
Rzut kondygnacji projektu G213 garaż dwustanowiskowy z pomieszczeniami gospodarczymi - Rzut parteru

1 garaż jednostanowiskowy: 35,33 m2
2 pomieszczenie gospodarcze: 9,85 m2
3 pomieszczenie gospodarcze: 9,85 m2
4 wiata garażowa jednostanowiskowa: (30,69 m2)

Koszt budowy domu


Orientacyjny koszt budowy domu w stanie surowym zamkniętym bez instalacji: 53 533 zł.

Technologia budowy domu


Technologia tradycyjna. Ściany zewnętrzne nośne murowane grubości 25 cm. Wszystkie ściany wykonane pustaków ceramicznych "POROTHERM". Więźba dachowa drewniana. Pokrycie dachu dachówka ceramiczna. Wymiar bramy garażowej 3,0x3,0 m.

Elewacje

autor: Pro arte Arkadiusz Woch, Krzysztof Biodrowicz spółka jawna

Projekty podobne do G213 garaż dwustanowiskowy z pomieszczeniami gospodarczymi SLN1295

Serwis prowadzi Extradom.plRegulaminPolityka prywatności