Projekt domu G19 - Budynek garażowo - gospodarczy PRA1018

kontakt - projekty domów | projektydomow.domiporta.pl

Joanna Skoczylas - Kunda

Porady, oferty, zamówienia

Jak zamówić projekt?

22 451 01 70

pn-pt 8-22, sb 10-18

Pow. użytkowa 44,55 m2 Kubatura 177,6 m3 Wysokość domu 4,36 m
Pow. zabudowy 52 m2 Min. szer. działki 16 m Kąt nach. dachu 25 st
Projekt domu G19 - Budynek garażowo - gospodarczy progress

Opis projektu

Projekt garażu jednostanowiskowego, parterowego, niepodpiwniczonego, przeznaczonego dla samochodów osobowych z pomieszczeniem gospodarczym. Do projektu dołączone jest zestawienie: stali, więźby dachowej oraz stolarki drzwiowej i okiennej, jak również bezpłatna zgoda na dokonanie zmian.

Kup teraz projekt

Cena: 849 zł

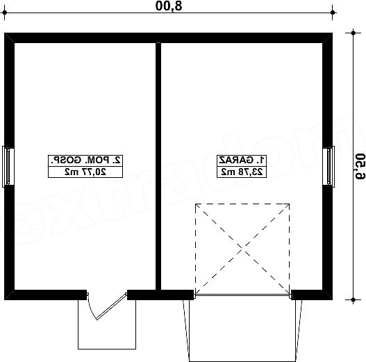
Rzut kondygnacji projektu G19 - Budynek garażowo - gospodarczy - Rzut parteru

1 garaż jednostanowiskowy: 23,78 m2
2 pomieszczenie gospodarcze: 20,77 m2

Przekrój

Technologia budowy domu


Budynek wykonany w technologii tradycyjnej. Ściany murowane z bloczków z betonu komórkowego grubości 24cm i 12cm. Brama o wymiarach 2,40×2,20m. Więźba dachowa czterospadowa, drewniana, pokryta blachodachówką.

Elewacje

autor: Kup Projekt

Projekty podobne do G19 - Budynek garażowo - gospodarczy PRA1018

Serwis prowadzi Extradom.plRegulaminPolityka prywatności