Projekt domu G100 - Budynek garażowo - gospodarczy PRA1114

kontakt - projekty domów | projektydomow.domiporta.pl

Joanna Skoczylas - Kunda

Porady, oferty, zamówienia

Jak zamówić projekt?

22 451 01 70

pn-pt 8-22, sb 10-18

Pow. użytkowa 23,16 m2 Kubatura 75,6 m3 Wysokość domu 3 m
Pow. zabudowy 29,27 m2 Min. szer. działki 12 m Kąt nach. dachu 4,5 st
Projekt domu G100 - Budynek garażowo - gospodarczy progress

Opis projektu

Projekt garażu jednostanowiskowego, parterowego, niepodpiwniczonego, przeznaczonego dla samochodów osobowych z pomieszczeniem gospodarczym. Budynek z możliwością budowy w granicy. Do projektu dołączone jest zestawienie: stali, więźby dachowej oraz stolarki drzwiowej i okiennej (luksfery), jak również bezpłatna zgoda na dokonanie zmian

Kup teraz projekt

Cena: 790 zł

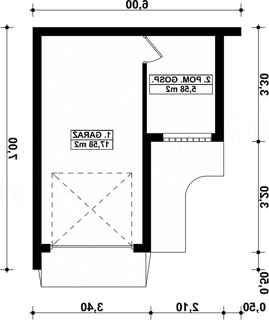
Rzut kondygnacji projektu G100 - Budynek garażowo - gospodarczy - Rzut parteru

1 garaż jednostanowiskowy: 17,58 m2
2 pomieszczenie gospodarcze: 5,58 m2

Przekrój

Technologia budowy domu


Budynek wykonany w technologii tradycyjnej. Ściany murowane z bloczków z betonu komórkowego grubości 24cm i 12cm. Bramy o wymiarach 2,40×2,10m. Więźba dachowa dwuspadowa, drewniana, pokryta blachą trapezową.

Elewacje

autor: Kup Projekt

Projekty podobne do G100 - Budynek garażowo - gospodarczy PRA1114

Serwis prowadzi Extradom.plRegulaminPolityka prywatności