Opis projektu
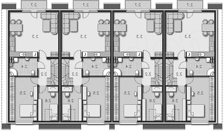
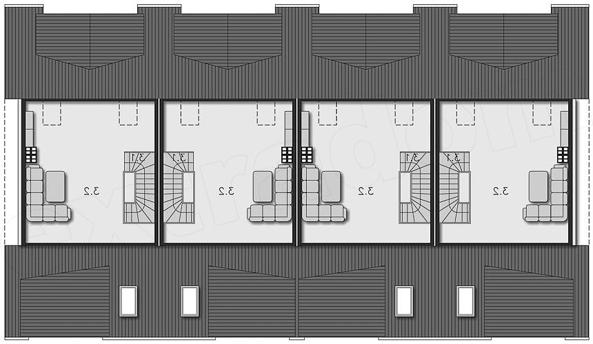
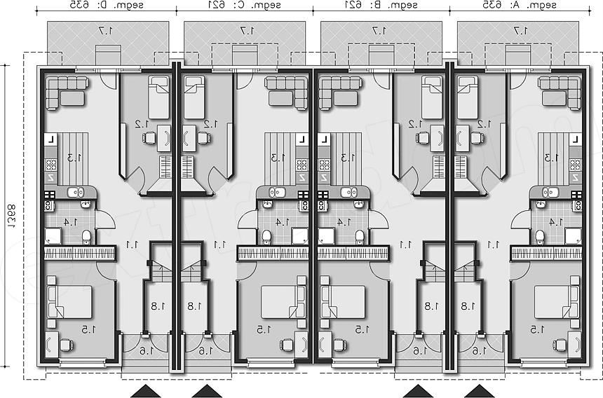
Ten dom szeregowy zawiera dwa osobne mieszkania w każdym segmencie. Mieszkanie na parterze ma ok 64m². Mieszkanie na piętrze jest większe ma ok 70m² oraz dodatkową powierzchnie (21m²) na poddaszu. W mieszkaniu każdym znajduje się część dzienna z salonem i aneksem kuchennym, łazienka oraz dwie sypialnie. Każde z mieszkań ma osobne ogrzewanie poprzez piec gazowy umieszczony w łazienkach. Ładna bryła domu i ciekawe detale wykończenia sprawiają, że dom będzie się ładnie komponował na miejskich osiedlach.
