Projekt domu Egon z garażem 1-st. [A] WRF1975

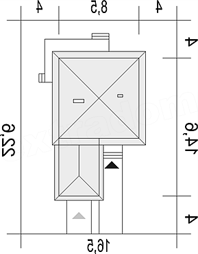
Pow. użytkowa 94,8 m2 Wysokość domu 8,7 m
Pow. zabudowy 98 m2 Min. szer. działki 16,5 m Kąt nach. dachu 22 st
Pow. dachu 125 m2
Projekt domu Egon z garażem 1-st. [A] progress

Opis projektu

Projekt niewielkiego domu piętrowego Egon z garażem.

Projekt został
wycofany z oferty

W razie pytań prosimy o kontakt
z Centrum Obsługi Klienta tel: 71 715 20 60

Rzut kondygnacji projektu Egon z garażem 1-st. [A] - Rzut parteru

1 wiatrołap: 6,1 m2
2 hall: 4,4 m2
3 pomieszczenie gospodarcze: 1,1 m2
4 łazienka: 3,6 m2
5 kuchnia: 6,5 m2
6 pokój dzienny: 20,7 m2
7 schody: 4 m2
8 kotłownia: 7,3 m2
9 garaż jednostanowiskowy: 18,7 m2

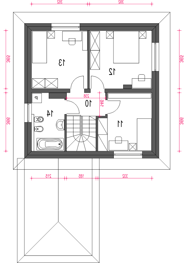
Rzut kondygnacji projektu Egon z garażem 1-st. [A] - Rzut 1 piętra

10 korytarz: 3,4 m2
11 pokój: 11,2 m2
12 pokój: 14 m2
13 pokój: 12,7 m2
14 łazienka: 7,3 m2

Usytuowanie domu na działce

Przekrój

Koszt budowy domu


Orientacyjny koszt budowy domu w stanie surowym zamkniętym bez instalacji: 215 622 zł.

Technologia budowy domu


Fundamenty: betonowe. Ściany zewnętrzne: porotherm+styropian termo organika. Strop na parterem: teriva. Strop nad piętrem i konstrukcja dachu: wiązary prefabrykowane Mitek. Elewacje: tynk strukturalny. Pokrycie dachu: dachówka ceramiczna.

Elewacje

autor: Archeco Dom dla Ciebie
Serwis prowadzi Extradom.plRegulaminPolityka prywatności