Projekt domu Domidea 52 a WAC1032

Pow. użytkowa 126,9 m2 Kubatura 461 m3 Wysokość domu 9 m
Pow. zabudowy 124,45 m2 Min. szer. działki 19,4 m Kąt nach. dachu 42 st
Pow. dachu 213,62 m2
Projekt domu Domidea 52 a progress

Opis projektu

Urokliwy dom zaprojektowany w stylu tradycyjnym. Z hallu wejściowego osobne wejście do wszystkich pomieszczeń, w tym do salonu i kuchni, która może zostać całkowicie zamknięta. Foremny 30-to metrowy ustawny salon wraz z dużą ścianą telewizyjną zapewnia łatwe i funkcjonalne umeblowanie. Dwustronny kominek między salonem a hallem ze schodami może stanowić prawdziwą ozdobę domu, widoczną od wejścia. Centralne usytuowanie kominka umożliwia rozprowadzenie ciepła do ogrzewania domu. Duża kotłownia pozwala na zastosowanie dowolnego sposobu opału. Na piętrze zaprojektowano trzy duże sypialnie, ogólnodostępną łazienkę i garderobę oraz pralnię. Strych można zaadoptować na szósty pokój dostępny z hallu.

Projekt został
wycofany z oferty

W razie pytań prosimy o kontakt
z Centrum Obsługi Klienta tel: 71 715 20 60

Rzut kondygnacji projektu Domidea 52 a - Rzut parteru

1 wiatrołap: 2,31 m2
2 łazienka: 4,02 m2
3 hall: 6,84 m2
4 spiżarnia: 1,23 m2
5 kuchnia: 8,76 m2
6 pokój dzienny: 30,06 m2
7 pokój: 12,04 m2
8 pomieszczenie gospodarcze: 2,3 m2
9 kotłownia: 6,1 m2
10 garaż jednostanowiskowy: 19,92 m2

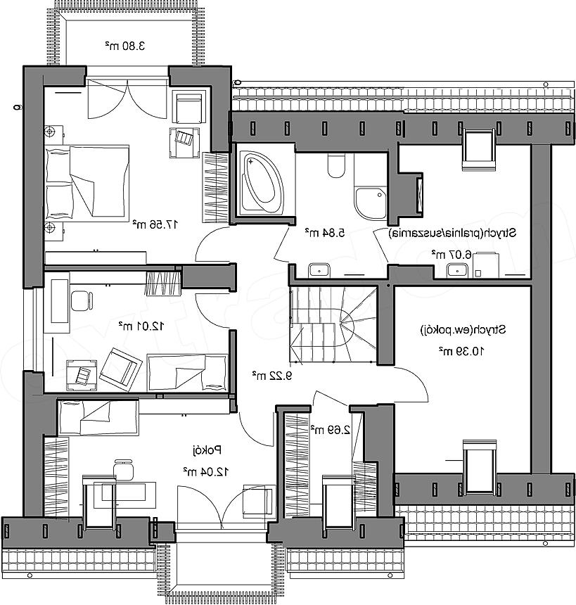
Rzut kondygnacji projektu Domidea 52 a - Rzut poddasza

1 korytarz: 9,22 m2
2 garderoba: 2,69 m2
3 pokój: 12,04 m2
4 pokój: 12,01 m2
5 pokój: 17,56 m2
6 łazienka: 5,84 m2
7 pomieszczenie gospodarcze: 6,07 m2
8 strych: 10,39 m2
9 balkon: (3,8 m2)

Usytuowanie domu na działce

Przekrój

Technologia budowy domu


Ściany zewnętrzne tradycyjne murowane dwuwarstwowe – pustak ceramiczny 25 cm i styropian. Strop gęstożebrowy. Schody monolityczne. Dach o konstrukcji drewnianej z pokryciem z dachówki ceramicznej, cementowej lub blachodachówki.

Elewacje

autor: Architektonika
Serwis prowadzi Extradom.plRegulaminPolityka prywatności