Opis projektu
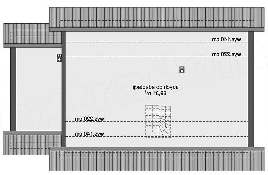
Projekt zgodny z wymaganiami WT2024. Klasyczna bryła DOMENY 106 A została stworzona z myślą o 4-5, a po zaadaptowaniu strychu nawet 6-7-osobowej rodzinie. Przedsionek z miejscem na szafę otwiera się na strefę dzienną, składającą się z przestronnego salonu połączonego z jadalnią oraz, łatwą do wydzielenia, kuchnią ze spiżarnią. Z funkcjonalnego holu mamy dostęp do dwóch łazienek oraz czterech pokoi. Jednostanowiskowy garaż dostępny z holu, z garażu dostępna kotłownia z wyjściem na ogród. Duży strych nieużytkowy bez przeszkód można zaadaptować na cele użytkowe, na przykład jako dodatkowe pokoje. Dom jest podobny do projektu: DOMENA 106 A-T, DOMENA 107 A, DOMENY 107, TIMOR PS, BETINA PS. Zastosowane rozwiązanie konstrukcyjne – prefabrykowane drewniane wiązary dachowe – pozwala na swobodną aranżację pomieszczeń dzięki eliminacji wewnętrznych ścian nośnych. Projekt posiada swoją wersję ze stropem Teriva. Projekt w standardzie posiada dodatkowo projekt ogrzewania kominkiem z płaszczem wodnym. Wizualizacja jest propozycją tego jak dany projekt domu oraz jego otoczenie można zaaranżować. Sposób prowadzenia tarasu, kształt murków i elementy małej architektury typu pergole, donice itp. nie są objęte zakresem projektu. W związku z powyższym na projekcie budowlanym elementy te mogą nie być uwzględnione w projekcie ( patrz pergole ) lub zmieniony może być ich kształt i sposób prowadzenia ( wielkości tarasów, profil murków )
