Projekt domu Dom przy Wiosennej 8 KRK1474

kontakt - projekty domów | projektydomow.domiporta.pl

Joanna Skoczylas - Kunda

Porady, oferty, zamówienia

Jak zamówić projekt?

22 451 01 70

pn-pt 8-22, sb 10-18

Pow. użytkowa 77,3 m2 Kubatura 384,63 m3 Wysokość domu 7,95 m
Pow. zabudowy 66,1 m2 Min. szer. działki 16,1 m Kąt nach. dachu 40 st
Pow. dachu 143,11 m2
Projekt domu Dom przy Wiosennej 8 progress

Opis projektu

Kup teraz projekt

Cena: 3390 zł

Rzut kondygnacji projektu Dom przy Wiosennej 8 - Rzut parteru

1 wiatrołap: 3,13 m2
2 hall: 2,89 m2
3 kuchnia: 7,09 m2
4 pokój dzienny: 17,51 m2
5 pokój: 8,02 m2
6 łazienka: 2,26 m2
7 kotłownia: 4,01 m2
8 wiata garażowa jednostanowiskowa:

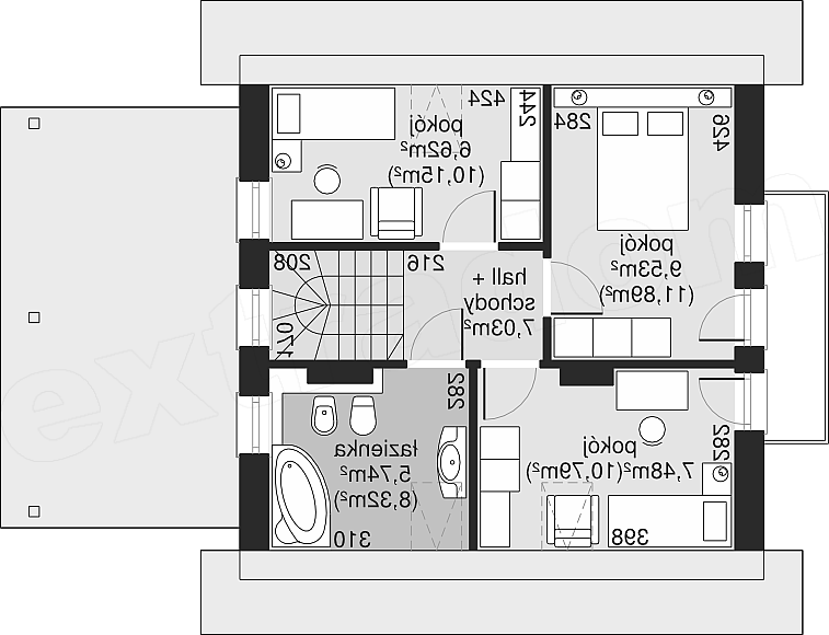
Rzut kondygnacji projektu Dom przy Wiosennej 8 - Rzut poddasza

1 hall + schody: 7,03 m2
2 łazienka: 5,74 m2 (8,32 m2)
3 pokój: 7,48 m2 (10,79 m2)
4 pokój: 9,53 m2 (11,89 m2)
5 pokój: 6,62 m2 (10,15 m2)

Usytuowanie domu na działce

Przekrój

Technologia budowy domu


Ściany zewnętrzne: pustak 25 cm, styropian 20 cm. Ściany nośne: pustak 25 cm. Strop: monolityczny żelbetowy. Dach: kąt nachylenia 40°, pokrycie - dachówka ceramiczna lub betonowa. Instalacja solarna.

Elewacje

autor: GALERIADOMOW.PL
Serwis prowadzi Extradom.plRegulaminPolityka prywatności