Opis projektu
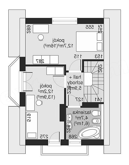
Dom przy Waniliowej 2 to uroczy dom o klasycznej architekturze, w którym wygodnie może zamieszkać czteroosobowa rodzina. Ciepła kolorystyka elewacji i wykończeń podkreśla jego stylowy charakter. Bryłę budynku urozmaicają dwa balkony i przeszklony wykusz. Funkcjonalne rozplanowanie wnętrza pozwala na maksymalne wykorzystanie przestrzeni. Duży salon z kominkiem jest doskonałym miejscem odpoczynku i wieczornego relaksu, a poddasze z trzema sypialniami zapewnia poczucie intymności. Dom do 70 m.
