Projekt domu Dom przy Szmaragdowej KRK1143

Pow. użytkowa 189,9 m2 Kubatura 998 m3 Wysokość domu 9,9 m
Pow. zabudowy 175,8 m2 Min. szer. działki 22,4 m Kąt nach. dachu 40 st
Pow. dachu 295 m2
Projekt domu Dom przy Szmaragdowej progress

Opis projektu

Czy Państwa uwagę zwracają projekty domów przestronnych i eleganckich, a jednocześnie funkcjonalnych? Projekt gotowy Dom przy Szmaragdowej to projekt domu stworzony specjalnie dla Państwa. Łączy on w sobie przemyślane wnętrze ze stylową i nowoczesną bryłą. Przemyślany układ pomieszczeń daje poczucie nieskrępowanej wygody. To projekt domu, który po zrealizowaniu przyniesie radość jego mieszkańcom każdego dnia.

Projekt został
wycofany z oferty

W razie pytań prosimy o kontakt
z Centrum Obsługi Klienta tel: 71 715 20 60

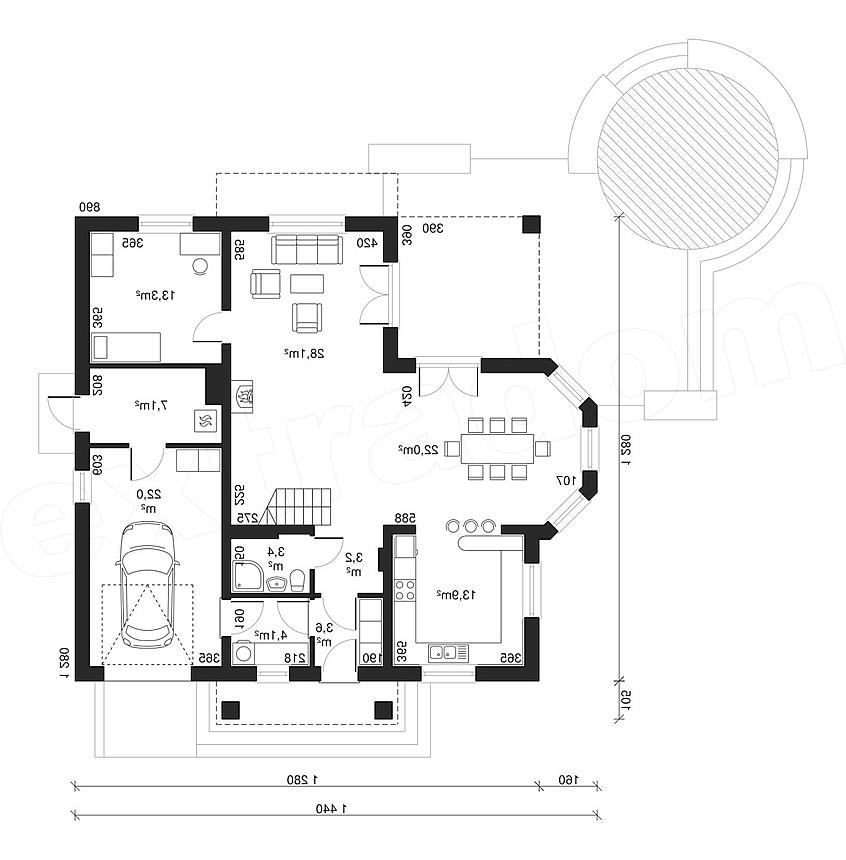
Rzut kondygnacji projektu Dom przy Szmaragdowej - Rzut parteru

1 wiatrołap: 3,6 m2
2 korytarz: 3,2 m2
3 kuchnia: 13,9 m2
4 jadalnia: 22 m2
5 pokój dzienny: 28,1 m2
6 pokój: 13,3 m2
7 kotłownia: 7,1 m2
8 garaż jednostanowiskowy: 22 m2
9 kotłownia: 4,1 m2
10 łazienka: 3,4 m2

Rzut kondygnacji projektu Dom przy Szmaragdowej - Rzut poddasza

1 korytarz: 15,9 m2
2 pokój: 15,8 m2
3 pokój: 14 m2 (21,7 m2)
4 pokój: 14 m2 (21,7 m2)
5 pokój: 16,3 m2
6 garderoba: 6,6 m2 (9,5 m2)
7 łazienka: 12,9 m2
8 łazienka: 6,9 m2 (9,5 m2)

Usytuowanie domu na działce

Przekrój

Technologia budowy domu


Ściany zewnętrzne: pustak 25 cm, styropian 15 cm. Ściany nośne: pustak 25 cm. Strop: monolityczny żelbetowy. Dach: kąt nachylenia 40°, pokrycie - dachówka ceramiczna lub betonowa.

Elewacje

autor: GALERIADOMOW.PL

Projekty podobne do Dom przy Szmaragdowej KRK1143

Serwis prowadzi Extradom.plRegulaminPolityka prywatności