Opis projektu
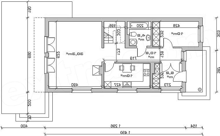
Wąska działka jest często znacznym ograniczeniem przy wyborze projektu. Dom przy Sokolej to projekt domu z poddaszem użytkowym przeznaczony na wąska działkę. Pozornie wąska bryła kryje w sobie ponad 140 m2 powierzchni użytkowej i obejmuje pokój dzienny, cztery pokoje sypialne, kuchnię, dwie łazienki oraz garderobę. Dostępna również wersja projektu z garażem - Dom przy Koniczynek.
