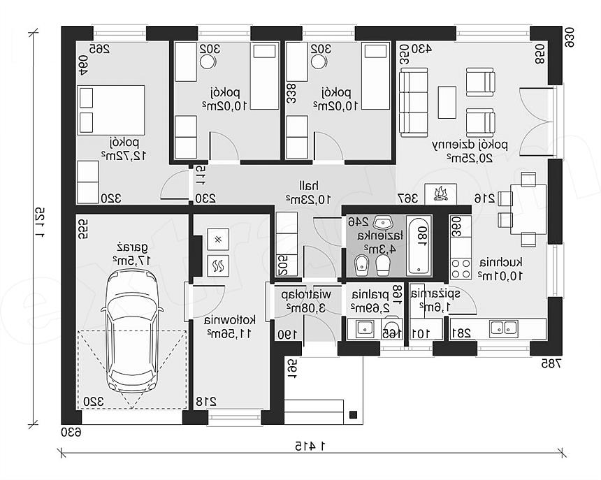
Opis projektu
Mały biały domek, w mej pamięci tkwi... Jeśli szukasz właśnie projektu domu, to w Twojej głowie też jest miejsce na mały biały domek. Nie musisz trzymać się jednak schematu. Domek nie musi być całkiem biały, mogą go na przykład zdobić drewniane eleganckie wykończenia. Może być podmurowany kolorowym kamieniem, a okna otoczone kremową ramką. Nie musi być też tak na prawdę mały. Możesz zmieniać słowa projektu według własnego uznania. To Ty jesteś autorem piosenki o swoim domku, do której tekst napiszesz z wielką przyjemnością przy Przyjemnej 5 bis.
