Opis projektu
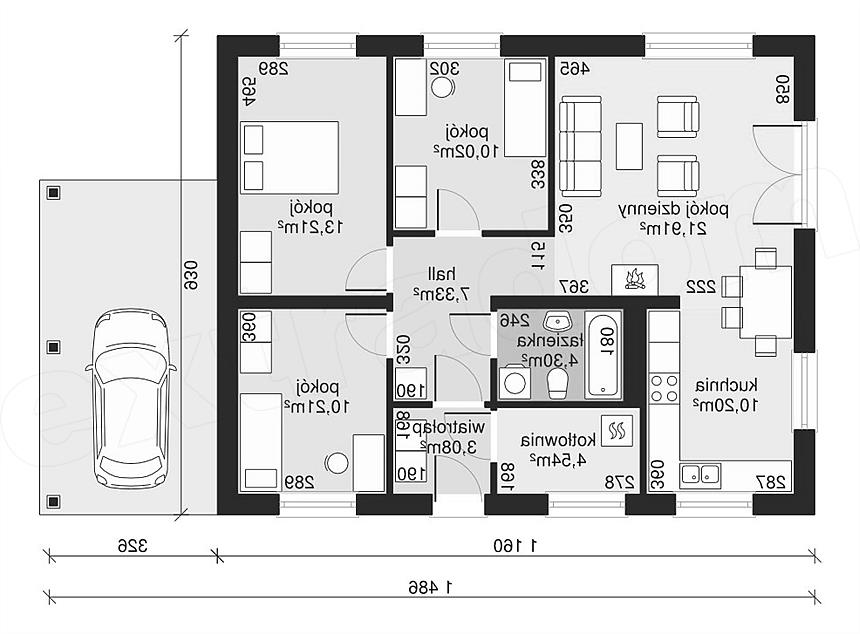
Dom przy Przyjemnej 2 bis to niewielki dom parterowy z wiatą garażową, przykryty dwuspadowym dachem. Dom jest tani w realizacji i ekonomiczny w codziennym użytkowaniu. Plan wnętrza oparty jest na sprawdzonych, praktycznych rozwiązaniach. Nowoczesna sylwetka budynku, jakość materiałów wykończenia elewacji oraz ich kolorystyka wpływają na przyjazny charakter domu. 30° kąt nachylenia połaci dachu skłania do rozważań nad możliwością wykorzystania poddasza. Projekt dostępny również w wersji z dachem o kącie nachylenia 25°.
