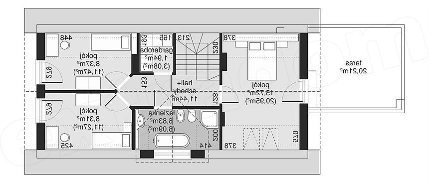
Opis projektu
Kolejny projekt z cyklu Domów przy Migdałowej to kontynuacja przyjętych założeń architektonicznych z poprzednich odsłon, czyli: wykorzystanie możliwości działki o ograniczonej szerokości, połączenie nowoczesności i elegancji, optymalizacja programu funkcjonalnego domu z uwzględnieniem aspektów ekonomicznych.
