Opis projektu
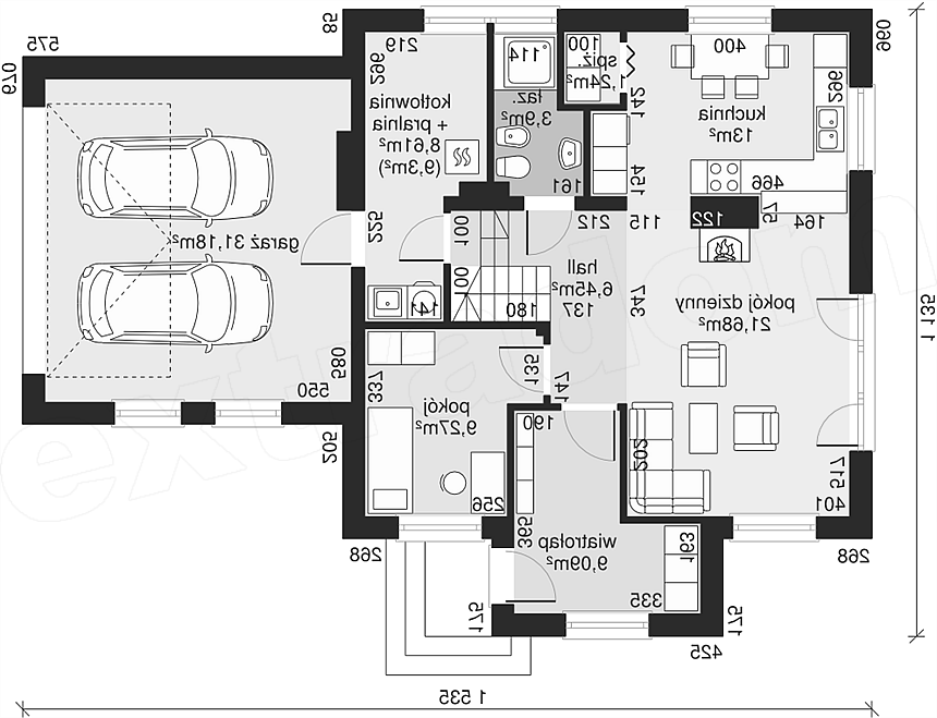
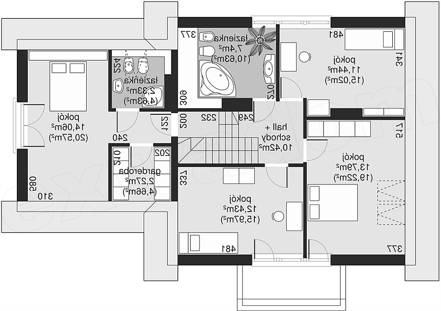
Jeden z naszych najbardziej reprezentacyjnych projektów – Dom przy Cyprysowej 19. Dom na planie prostokąta z dwustanowiskowym garażem sytuowanym od frontu budynku. Elewacja utrzymana w ciepłej kolorystyce: drewniane i jasnokremowe panele oraz brązowy dach sprawiają, że budynek posiada przytulny, a jednocześnie nowoczesny charakter. Atutem projektu jest dobrze zaplanowany plan wnętrza, który urzeka funkcjonalnością i wygodą. Na parterze umieszczono duży pokój dzienny połączony z kuchnią oraz mniejszy pokój, który może być pokojem gościnnym lub miejscem dla seniora. Pod schodami zaprojektowaliśmy przestrzeń prowadzącą do kotłowni połączonej z pralnią i z garażem. Na poddaszu usytuowano cztery pokoje, w tym jeden z garderobą i łazienką.
