Opis projektu
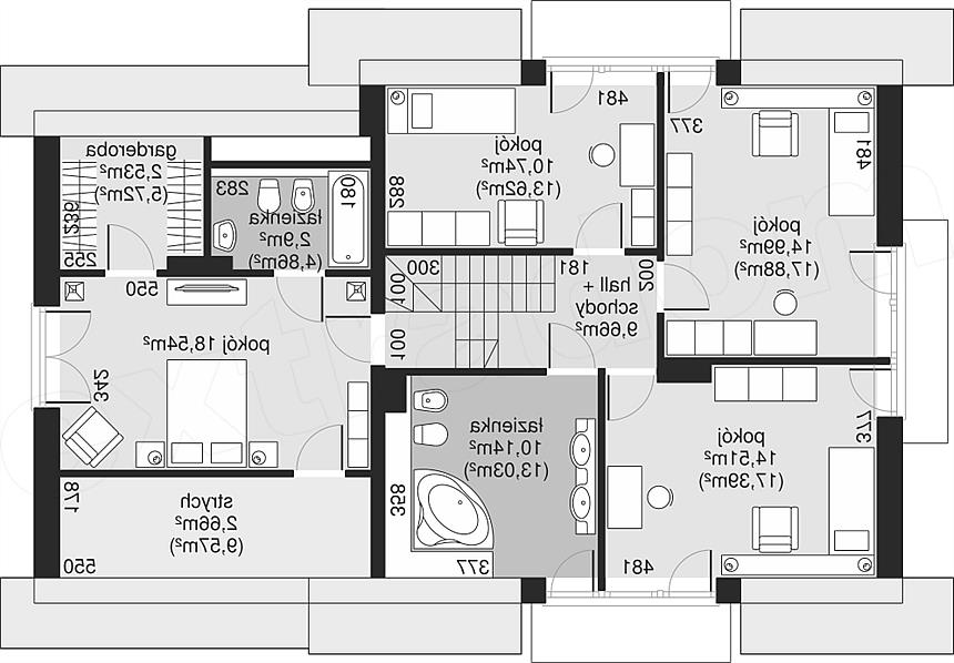
Dom przy Cyprysowej 15 DN2 to gotowy projekt domu z użytkowym poddaszem, podwójnym garażem i dachem dwuspadowym, ustawionym kalenicą równolegle do drogi. Część dzienną tworzą duży, przestronny pokój dzienny połączony z jadalnią ulokowaną w przeszklonym wykuszu. Całość przestrzeni uzupełnia otwarta kuchnia. Poręcznym rozwiązaniem jest spiżarnia, w której przechowamy domowe przetwory i inne artykuły żywnościowe. Pozostałe elementy parteru to dodatkowy pokój, łazienka, pralnia zlokalizowana pod schodami i spora kotłownia umieszczona za garażem. Na poddaszu zaprojektowano cztery sypialnie i dwie łazienki. Sypialnia małżeńska posiada własną łazienkę, garderobę i dostęp do niewielkiego strychu. Każdy pokój ma wyjście na balkon. Budynek projektowany w technologii tradycyjnej, murowanej, z ogrzewaniem gazowym. Dodatkowo opcjonalnie można zastosować wentylację mechaniczną z rekuperacją oraz instalację solarną. Łatwy w realizacji, szybki w budowie, energooszczędny i ekonomiczny w użytkowaniu. Dom dla dużej rodziny, która lubi przestrzeń, komfort i doceni nowoczesną stylistykę architektoniczną.
