Opis projektu
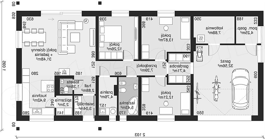
Dom przy Bukowej 8 jest gotowym projektem energooszczędnego domu parterowego z dwustanowiskowym garażem. Wykonany w technologii tradycyjnej, murowanej i dostosowany do najnowszych warunków technicznych. Układ funkcjonalny przewiduje otwartą, słoneczną część dzienną, na którą składa się salon i kuchnia. Centralnie ulokowany kominek i spora spiżarnia to atuty tej przyjaznej przestrzeni. Bukowa 7 posiada ponadto 3 sypialnie, pralnie, wygodną łazienkę i dodatkową toaletę. Za podwójnym garażem ulokowano kotłownię oraz funkcjonalne pomieszczenie do przechowywania mebli i sprzętów ogrodowych poza sezonem. Pomieszczenie łączące wnętrze domu z garażem idealnie nadaje się na garderobę potrzebną w każdym domu. Elewacja budynku, wykonana z naturalnego drewna i kamienia, utrzymana w stonowanych kolorach, oddaje niezwykle popularny i lubiany styl we współczesnej architekturze. Projekt, dzięki przemyślanej konstrukcji, jest szybki i tani w budowie oraz ekonomiczny w użytkowaniu. Doskonały wariant dla 4-5 osobowej rodziny.
