Opis projektu
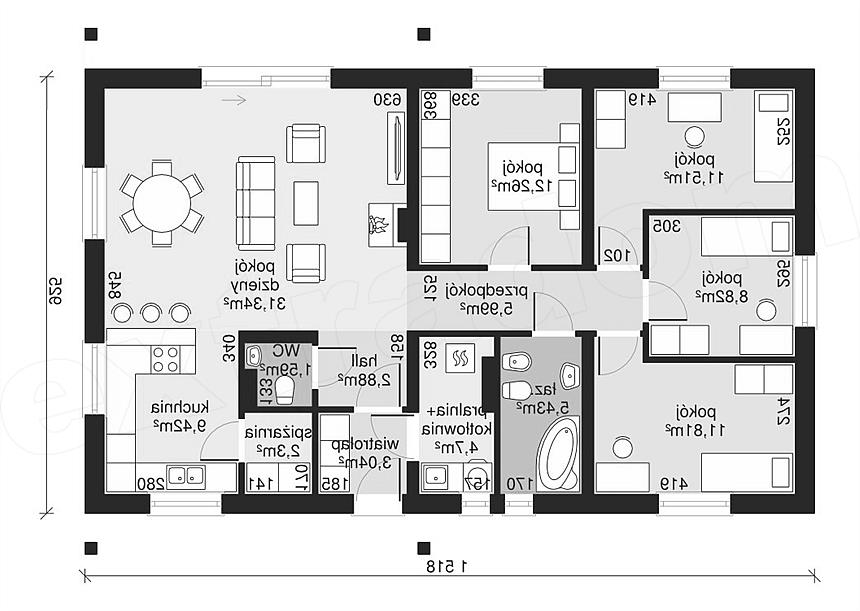
Dom parterowy w nowoczesnej stylistyce. Prosta i zgrabna bryła z dwuspadowym dachem. Jasna elewacja z dodatkiem drewnianych okładzin. Dom zaprojektowany z myślą o dużej, nawet pięcioosobowej rodzinie. Funkcjonalne rozplanowanie wnętrza pozwala na maksymalne wykorzystanie przestrzeni. Część dzienna to salon z kominkiem i wyjściem do ogrodu oraz otwarta kuchnia. Część nocna to cztery sypialnie i łazienka. To idealna propozycja dla osób poszukujących wygodnego domu o sprawdzonych rozwiązaniach i ekonomicznego w codziennym użytkowaniu.
