Opis projektu
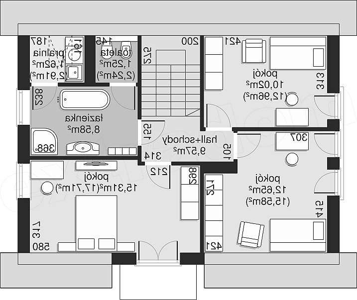
Dom przy Alabastrowej 56 to projekt budynku mieszkalnego o powierzchni 115 m2. Posiada dach dwuspadowy z lukarną oraz kalenicę dachu ustawioną równolegle do drogi. Nowoczesny dom energooszczędny opracowany wg standardów WT 2021. Na parterze znajduje się otwarta strefa dzienna – salon, otwarta kuchnia, dodatkowy pokój, łazienka oraz kotłownia. Poddasze zajmuje strefa nocna – 3 sypialnie, duża łazienka z pralnią i toaletą. Budynek dzięki swej konstrukcji jest ekonomiczny w budowie i oszczędny w użytkowaniu. Nowoczesne wykończenie zewnętrzne przy użyciu szlachetnych materiałów - szkło, drewno, beton architektoniczny. Doskonała opcja dla 4-5 osobowej rodziny.
