Opis projektu
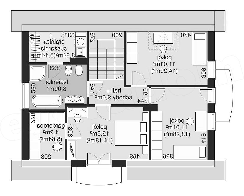
Czarny dach i biel ścian to elegancki kontrast, który wyraźnie zapada w pamięć. Graficzny styl projektu Domu przy Alabastrowej 31 uzupełniają ciemnoszare ramy okienne, drzwi i brama garażowa w tej samej tonacji. Wnętrze domu również zaprojektowane jest z klasą. Królują w nim czytelne podziały na strefę wypoczynkową, dzienną i gospodarczą. Na parterze zwraca uwagę regularny kształt pokoju dziennego i kuchni oraz centralnie usytuowany kominek. Na poddaszu – praktyczna garderoba i pralnia z suszarnią.
