Opis projektu
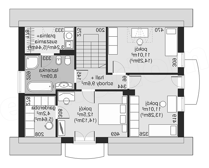
Rodzina projektów Dom przy Alabastrowej zawiera rozwiązania przygotowane dla rozmaitych działek, także takich o niedużej powierzchni. Projekt Dom przy Alabastrowej 21 jest wariantem zawierającym nowoczesny program użytkowy, uwzględniający współczesny model życia. Jednoprzestrzenny układ pomieszczeń pobytu dziennego to duże wnętrze o regularnych kształtach. Poddasze zawiera strefę nocną, z kształtnymi pokojami, wygodną łazienką i pralnią. Zwarta bryła budynku mieści także wbudowany garaż jednostanowiskowy. Kolorystyka elewacji utrzymana jest w ciepłej, pogodnej tonacji.
