Opis projektu
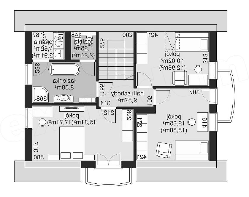
W rodzinie projektów Dom przy Alabastrowej znajdują się także warianty o mniejszym metrażu, do których zaliczyć można Dom przy Alabastrowej 20. Jednoprzestrzenny układ pomieszczeń przeznaczonych do pobytu dziennego łączy w sobie funkcje salonu, jadalni oraz kuchni. Kształtne i niemałe pomieszczenia są łatwe w umeblowaniu. Na uwagę zasługuje obszerna łazienka na poddaszu. Wygląd zewnętrzny, to kompozycja kolorów i kształtów na regularnej bryle domu. Barwy o ciepłej tonacji i duże przeszklenia sprawiają, że pogodny nastój można uzyskać nie tylko w słoneczne dni.
