Opis projektu
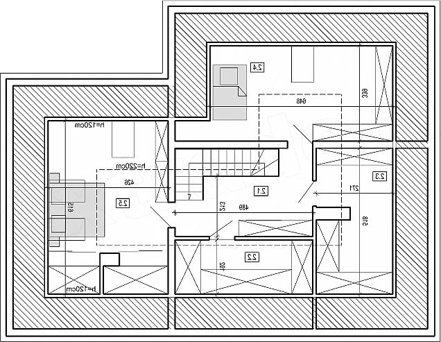
Dom parterowy z poddaszem użytkowym, możliwym do późniejszej adaptacji. Parter został podzielony na strefę dzienną z salonem, kuchnią i jadalnią oraz część nocną, składającą się z dwóch sypialni, łazienki i garderoby.Część nocną można całkowicie oddzielić od strefy dziennej. Na poddaszu zlokalizowano dwie sypialnie z pomieszczeniami pomocniczymi. Ustawienie pomieszczeń na poddaszu jest w zasadzie do dowolnej aranżacji. Dom posiada wbudowany garaż na 2 samochody osobowe oraz dość duże pomieszczenie gospodarcze.
