Opis projektu
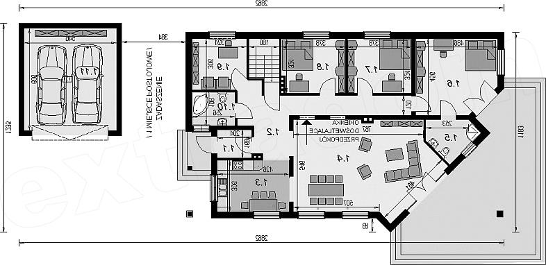
Dom parterowy został opracowany na nietypową działkę na zlecenie indywidualne. Cechą wyróżniającą ten dom spośród innych jest ścięty narożnik części domu od strony salonu, który powoduje że dom pasuje do nietypowej lokalizacji. Garaż 2 stanowiskowy można wykonać w 2 etapie inwestycji lub zrezygnować z niego. Wnętrze domu zostało podzielone na strefę dzienną i nocną. W strefie dziennej znajduje się duży salon o powierzchni ponad 43 m2. W strefie nocnej znajdują się 3 sypialnie w tym jedna 2-osobowa z własną łazienką.
