Projekt domu D73 WAI1149

kontakt - projekty domów | projektydomow.domiporta.pl

Joanna Skoczylas - Kunda

Porady, oferty, zamówienia

Jak zamówić projekt?

22 451 01 70

pn-pt 8-22, sb 10-18

Pow. użytkowa 101,04 m2 Kubatura 613,39 m3 Wysokość domu 8,56 m
Pow. zabudowy 107,99 m2 Min. szer. działki 21,96 m Kąt nach. dachu 45 st
Projekt domu D73 progress

Opis projektu

D73 WT2021 to nowoczesny projekt w wresji murowanej.

Kup teraz projekt

Cena: 4799 zł

Rzut kondygnacji projektu D73 - Rzut parteru

1 wiatrołap: 2,42 m2
2 hall: 4,44 m2
3 pokój: 9,27 m2
4 pokój dzienny + jadalnia: 22,14 m2
5 kuchnia: 9,75 m2
6 łazienka: 3,21 m2
7 pomieszczenie gospodarcze: 3,44 m2
8 spiżarnia: 1,24 m2
9 garaż jednostanowiskowy: 18,6 m2
10 taras: (5,1 m2)
11 taras: (20,03 m2)

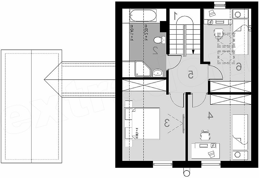
Rzut kondygnacji projektu D73 - Rzut poddasza

1 schody: 5,17 m2
2 łazienka: 6,72 m2 (9,33 m2)
3 pokój: 12,84 m2 (15,92 m2)
4 pokój: 10,66 m2 (13,17 m2)
5 korytarz: 4,19 m2
6 pokój: 8,99 m2 (12,18 m2)

Usytuowanie domu na działce

Przekrój

Technologia budowy domu


ściany zewnętrzne: murowane z ociepleniem. Ściany wewnętrzne: murowane. Strop: żelbetowy. Pokrycie dachu: blacha kąt nachylenia 45st, kąt nachylenia daszku garażu 30st elewacje: płyty kamienne, płyty cementowo-drzazgowe oraz blacha ogrzewanie gazowe.

Elewacje

autor: Artinex

Projekty podobne do D73 WAI1149

Serwis prowadzi Extradom.plRegulaminPolityka prywatności