Projekt domu D111A WAI1283

Pow. użytkowa 108,73 m2 Kubatura 697 m3 Wysokość domu 8,8 m
Pow. zabudowy 110,19 m2 Min. szer. działki 19,8 m Kąt nach. dachu 40 st
Projekt domu D111A progress

Opis projektu

Dom D111A jest skierowany do naszych klientów, szukających niewielkiego, nowoczesnego domu parterowego z użytkowym poddaszem i garażem. Prosta, czysta bryła oraz harmonijny podział w elewacjach czynią ten dom klasycznie eleganckim. Podstawowym założeniem przyjętym przy projekcie budynku było stworzenie funkcjonalnego i ciekawego wnętrza na niewielkim metrażu. Jest to budynek parterowy kryty dwuspadowym dachem z lukarną w elewacji frontowej. W elewacji budynku poprzez materiał zaakcentowano wyraźnie, strefę wejściową. W bryle budynku oddzielono także funkcję mieszkalną dzienną od nocnej, jak również strefę mieszkalną od garażu i strefy gospodarczej.

Projekt został
wycofany z oferty

W razie pytań prosimy o kontakt
z Centrum Obsługi Klienta tel: 71 715 20 60

Rzut kondygnacji projektu D111A - Rzut parteru

1 wiatrołap: 4,33 m2
2 hall: 6,67 m2
3 łazienka: 3,74 m2
4 pomieszczenie gospodarcze: 7,47 m2
5 pokój: 12,8 m2
6 kuchnia + jadalnia: 9,76 m2
7 pokój dzienny: 17,17 m2
8 garaż jednostanowiskowy: 20,48 m2

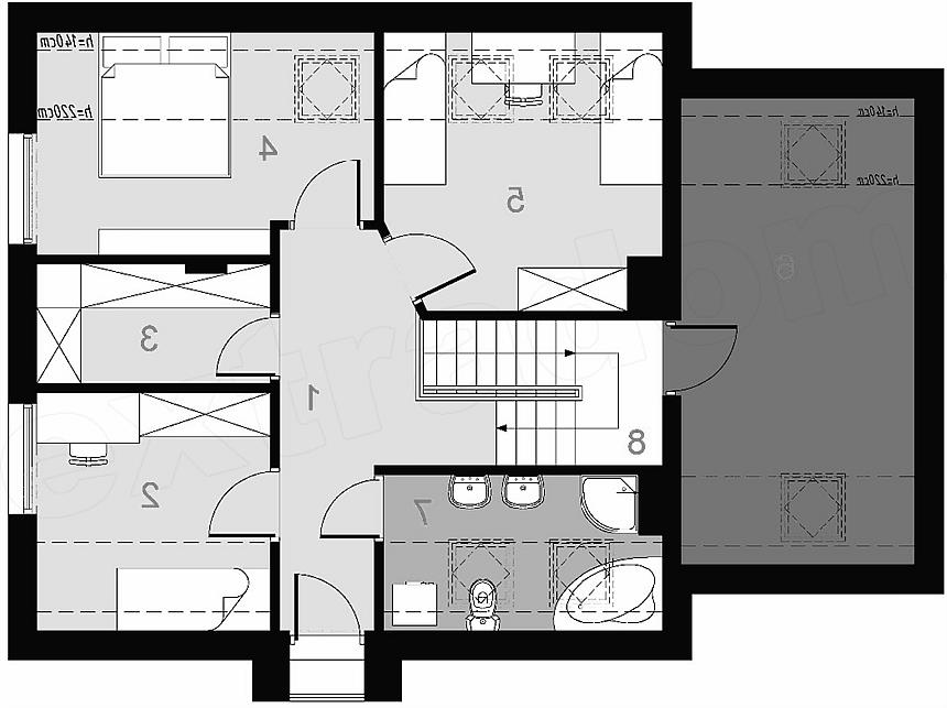
Rzut kondygnacji projektu D111A - Rzut poddasza

1 hall: 9,66 m2
2 pokój: 8,08 m2 (10,41 m2)
3 garderoba: 5,14 m2
4 pokój: 10,1 m2 (13,43 m2)
5 pokój: 10,87 m2 (13,9 m2)
6 strych: 15,84 m2 (20,48 m2)
7 łazienka: 5,12 m2 (7,83 m2)
8 schody: 5,29 m2
9 balkon: (0,68 m2)

Usytuowanie domu na działce

Koszt budowy domu


Orientacyjny koszt budowy domu w stanie surowym zamkniętym bez instalacji: 297 975 zł.

Technologia budowy domu


Ściany zewnętrzne: murowane z ociepleniem 20 cm i licówką. Strop: gęstożebrowy Teriva. Pokrycie dachu: blachodachówka. Elewacja: tynk cienkowarstwowy

Elewacje

autor: Artinex

Projekty podobne do D111A WAI1283

Serwis prowadzi Extradom.plRegulaminPolityka prywatności