Opis projektu
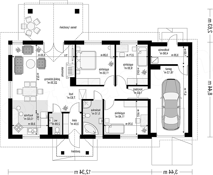
Projekt domu Czaruś to budynek jednorodzinny, parterowy, przekryty czterospadowym dachem, z dobudowanym garażem. Dom zaprojektowany z myślą o 4-5osobowej rodzinie. Prosta, nieskomplikowana w budowie bryła budynku, oraz bezpretensjonalna architektura, dają czytelny efekt współczesnego domu nawiązującego do tradycji dworkowej, ale z wykorzystaniem nowych materiałów i detali. Elewację frontową domu ozdabia - i jednocześnie akcentuje wejście - centralnie wkomponowany ganek wejściowy, wsparty na dwóch kolumnach. Od strony ogrodu urozmaiceniem bryły jest duży podcień, przekrywający częściowo taras. Wnętrze podzielono na część dzienną - z obszernym salonem, holem i kuchnią, oraz nocną - z trzema sypialniami i łazienką. W projekcie domu Czaruś garaż połączono z wnętrzem korytarzem - garderobą. Za garażem umieszczono kotłownię z wyjściem ogrodowym. Pracownia posiada wersję odbicia lustrzanego projektu.
