Opis projektu
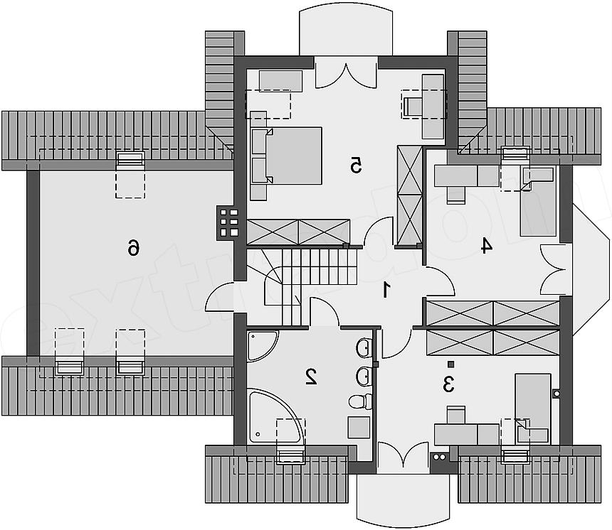
Tradycyjny dom jednorodzinny z poddaszem. Główną zaletą oraz cechą domu jest jego nasłonecznienie, dzięki temu jest to dom jasny i optymistyczny. Przestrzeń jaką posiada jadalnia, zlokalizowana w wykuszu, z powodzeniem pomieści dodatkowy stół. Jest to nie lada zaleta i okazja do wspólnego biesiadowania z przyjaciółmi i rodziną. Ciekawym pomysłem są dwa wyjścia z salonu na taras, z pewnością zostaną one wykorzystane w pogodne letnie wieczory. Łazienka, pomieszczenie gospodarcze oraz garaż to osobna część parteru. Jest to bardzo wygodne dla domowników – dzieli dom na poszczególne strefy: mieszkalną, intymną łazienkę oraz gospodarczą. Projekt w standardzie posiada dodatkowo projekt ogrzewania kominkiem z płaszczem wodnym. Poddasze, z trzema sypialniami oraz łazienką, stanowi strefę nocną domku. Usytuowanie oraz rozmiar strychu sprzyja jego adaptacji na dodatkowe pomieszczenia podnoszące komfort i wygodę.
