Projekt domu Carrara DCP332 WOB1584

kontakt - projekty domów | projektydomow.domiporta.pl

Joanna Skoczylas - Kunda

Porady, oferty, zamówienia

Jak zamówić projekt?

22 451 01 70

pn-pt 8-22, sb 10-18

Pow. użytkowa 184,66 m2 Kubatura 889,5 m3 Wysokość domu 7,09 m
Pow. zabudowy 151,4 m2 Min. szer. działki 22,6 m Kąt nach. dachu 1 st
EUco 13,38 kWh/(m2*rok)
Projekt domu Carrara DCP332 progress

Opis projektu

Carrara to dom stworzony na tereny położone w malowniczym miejscu, z pięknym widokiem na jezioro, las, czy góry. Dzięki dużym przeszkleniom domownicy mogą napawać się tym widokiem przez cały dzień – czy to z sypialni, czy też z otwartej strefy dziennej, na którą składa się prawie 50-cio metrowa przestrzeń, podzielona funkcjonalnie na salon z kominkiem, jadalnię, która pomieści nawet największą liczbę gości oraz kuchnię z nowoczesną wyspą. Taka kuchnia będzie rajem dla miłośników gotowania, ponieważ dodatkowo jest wyposażona w wyjątkowo dużą spiżarnię. Sąsiadujący taras będzie zachęcał do wypoczynku. Na piętrze z powodzeniem może mieszkać większa rodzina, bo są tam aż cztery sypialnie, a dodatkowy pokój na parterze może być pokojem do pracy, czy przeznaczony dla seniorów.

Kup teraz projekt

Cena: 5970 zł

Rzut kondygnacji projektu Carrara DCP332 - Rzut parteru

1 wiatrołap: 5,44 m2
2 korytarz: 13,66 m2 (15,76 m2)
3 łazienka: 4,2 m2
4 pokój: 10,91 m2
5 pokój dzienny: 35,06 m2
6 kuchnia: 14,69 m2
7 spiżarnia: 4,71 m2
8 kotłownia: 6,11 m2
9 garaż jednostanowiskowy: 23,64 m2
10 podest: (15,33 m2)
11 taras: (34,02 m2)

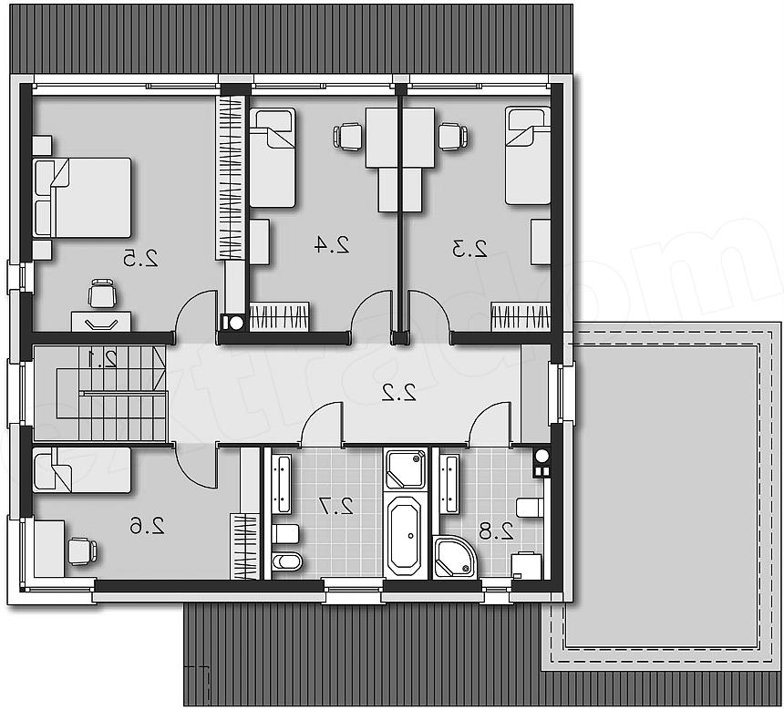
Rzut kondygnacji projektu Carrara DCP332 - Rzut 1 piętra

1 schody: 5,31 m2
2 korytarz: 15,32 m2
3 pokój: 14,12 m2
4 pokój: 14,12 m2
5 pokój: 20,11 m2
6 pokój: 12,18 m2
7 łazienka: 8,72 m2
8 pomieszczenie gospodarcze: 6,11 m2

Usytuowanie domu na działce

Przekrój

Koszt budowy domu


Orientacyjny koszt budowy domu w stanie surowym zamkniętym bez instalacji: 503 900 zł.

Technologia budowy domu


Fundamenty - rozwiązanie o podwyższonej izolacji termicznej. Ściany zewnętrzne - Bloczek silikatowy 24 cm + styropian 20 cm. Strop - gęstożebrowy. Dach - stropodach żelbetowy. Ogrzewanie - c.o. grzejnikowe + c.w.u. - kocioł gazowy. Wentylacja - rekuperacja.

Elewacje

autor: Lipińscy Domy Biuro Projektowe ,

Projekty podobne do Carrara DCP332 WOB1584

Serwis prowadzi Extradom.plRegulaminPolityka prywatności