Opis projektu
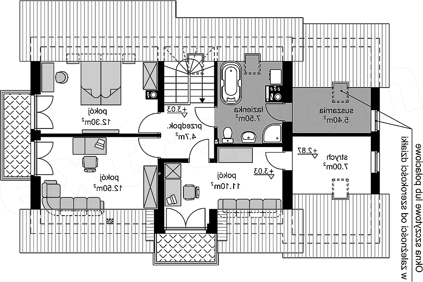
Budynek mieszkalny jednorodzinny, wolnostojący, parterowy bez podpiwniczenia, z poddaszem użytkowym i garażem dobudowanym do ściany bocznej budynku. Wielkość mieszkania odpowiada potrzebom 4-5 osobowej rodziny. Zaprojektowano budynek parterowy, bez podpiwniczenia, z poddaszem użytkowym, przewidziany do usytuowania frontem na stronę północną. Rzut budynku oparto na kształcie prostokąta przekrytego prostym dwuspadowym dachem o nachyleniu połaci 42°. W strefie wejściowej budynku zaprojektowano lukarnę dachową z płytą balkonową wspornikową stanowiącą jednocześnie zadaszenie wejścia do budynku.
