Opis projektu
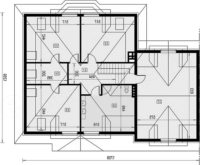
Projekt został wykonany na indywidualne zamówienie firmy deweloperskiej. Na bazie tego projektu została wybudowana duża część osiedla mieszkaniowego pod Warszawą. Dom spełnia wymagania 5-6 osobowej rodziny. Pomieszczenia wewnątrz są duże i funkcjonalne. Na poddaszu znajdują się duże sypialnie oraz pokój kąpielowy. Dom posiada wbudowany garaż na 2 samochody osobowe.
