Projekt domu Belladonna paliwo stałe WOE1041

Pow. użytkowa 107,42 m2 Kubatura 881,98 m3 Wysokość domu 7,58 m
Pow. zabudowy 157,18 m2 Min. szer. działki 23,34 m Kąt nach. dachu 35 st
Pow. dachu 265,58 m2
Projekt domu Belladonna paliwo stałe progress

Opis projektu

Projekt klasycznego domu parterowego z możliwością adaptacji poddasza. Parter budynku został podzielony na 3 strefy. Strefa dzienna to duża, jasna kuchnia oraz przestronny salon z centralnie umieszczonym kominkiem. Przewidziano w nim miejsce na schody, prowadzące na ewentualne poddasze. Strefa nocna to 3 ustawne pokoje oraz jasna łazienka, w której zmieści się wanna i prysznic. Do strefy gospodarczej należą: praktyczna pralnia, łącząca dom z garażem oraz duża kotłownia, w której zaprojektowano piec na paliwo stałe. Dzięki zastosowaniu stropu Teriva, przestrzeń na poddaszu można organizować w dowolny sposób. Nasza propozycja to 2 dodatkowe pokoje, 2 garderoby i wygodna łazienka, co daje dodatkowe 55 m² powierzchni użytkowej domu (liczone na 190 cm) . Dom można budować etapami, adaptacja poddasza może być przeprowadzona później. Dzięki zastosowaniu prostych rozwiązań dom jest tani w budowie i późniejszej eksploatacji. Uwaga! Dokumentacja Projektowa nie zawiera elementów małej architektury takich jak: donice, podesty, altany, grille ogrodowe, murki, pergole, a także innych elementów wizualizacji, takich jak: garaże i wiaty wolnostojące, drogi, podjazdy, ogrodzenia, baseny itp.

Projekt został
wycofany z oferty

W razie pytań prosimy o kontakt
z Centrum Obsługi Klienta tel: 71 715 20 60

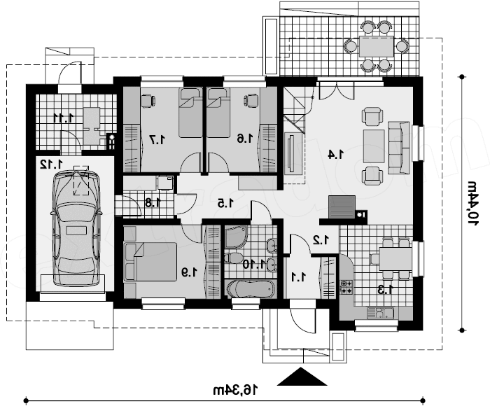
Rzut kondygnacji projektu Belladonna paliwo stałe - Rzut parteru

1 wiatrołap: 3,71 m2
2 korytarz: 2,69 m2
3 kuchnia + jadalnia: 11,98 m2
4 pokój dzienny: 29,67 m2
5 korytarz: 7,62 m2
6 pokój: 10,28 m2
7 pokój: 11,54 m2
8 pomieszczenie gospodarcze: 3,7 m2
9 pokój: 12,22 m2
10 łazienka: 6,63 m2
11 kotłownia: 6,63 m2
12 garaż jednostanowiskowy: 18,11 m2

Usytuowanie domu na działce

Przekrój

Technologia budowy domu


Budynek posadowiony został na fundamentach betonowych. Ściany zewnętrzne dwuwarstwowe z betonu komórkowego. Ściany wewnętrzne z betonu komórkowego jak i z płyty gipsowo-kartonowej [na ruszcie]. Strop gęstożebrowy – TERIVA. Więźba dachowa drewniana. Pokrycie dachu - dachówka cementowa. Ogrzewanie na paliwo stałe.

Elewacje

autor: Archiportal

Projekty podobne do Belladonna paliwo stałe WOE1041

Serwis prowadzi Extradom.plRegulaminPolityka prywatności