Opis projektu
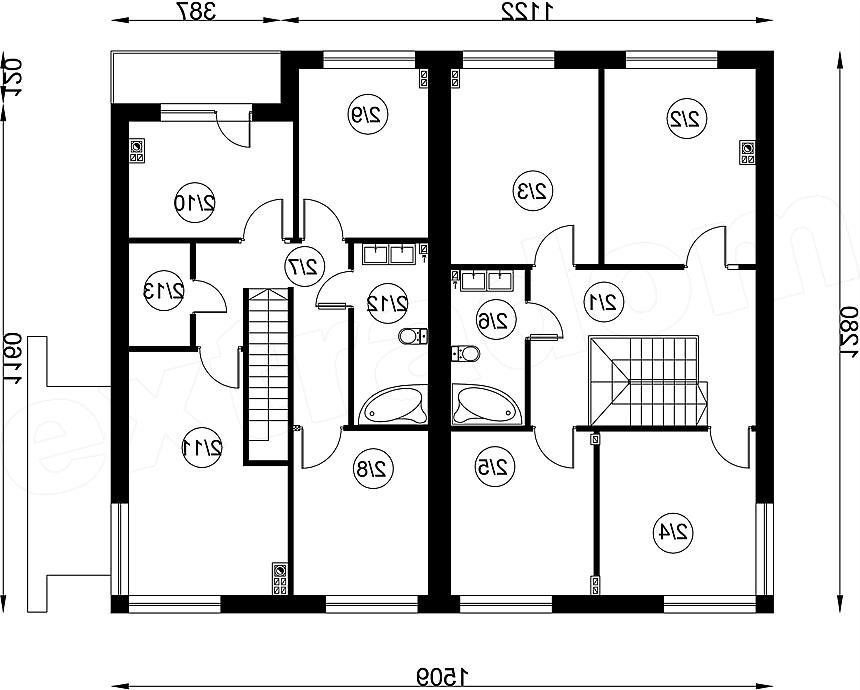
Dom B-121 jest to propozycja biura na bardzo tani w budowie ale bardzo efektowny, nietuzinkowy dom jednorodzinny dwulokalowy. Bryła jest nowoczesna i mocno zwarta, wręcz kompaktowa i zajmuje mało miejsca na działce przez co polecana jest również dla niewielkich działek, gdzie podział już jest niemożliwy a chciałyby zamieszkać w nim dwie rodziny mając komfort domu jednorodzinnego. Wnętrze budynku jest przemyślane, a przestrzeń wewnętrzna jest bardzo efektywnie i racjonalnie wykorzystana. Zmniejszono przestrzeń komunikacyjną do minimum, a na 154 metrach jakie mają lokale wygospodarowano po 5 pokoi, które mają optymalne proporcje i powierzchnie.
