Opis projektu
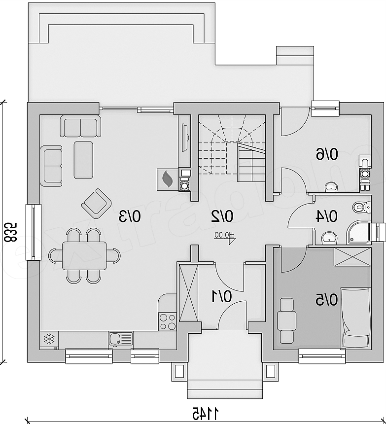
Aronia to nieduży dom, przeznaczony dla 4-5 osobowej rodziny. Ciekawy detal architektoniczny i ciepła kolorystyka elewacji - zawarte w prostej formie , sprawiają że dom ma atrakcyjny wygląd, a do tego jest prosty i tani w budowie. Główne zalety projektu to: sypialnia z własną garderobą i łazienką, duży salon z kuchnią, wiatrołap z miejscem na szafę, pokój gościnny na parterze, sypialnia z garderobą, wysoka ściana kolankowa, która zapewni maksymalne wykorzystanie przestrzeni na poddaszu, pom. gospodarcze z wyjściem na ogród, prosta i ekonomiczna konstrukcja domu.
