Projekt domu Arkadia BSA1216

Pow. użytkowa 275,3 m2 Kubatura 1425 m3 Wysokość domu 7,7 m
Pow. zabudowy 393,5 m2 Min. szer. działki 31,94 m
Pow. dachu 285,7 m2
Projekt domu Arkadia progress

Opis projektu

Arkadia to projekt nowoczesnego domu parterowego z garażem dwustanowiskowym, ewentualnym częściowym podpiwniczeniem oraz niewielką dodatkową kondygnacją. Budynek został zaprojektowany w stylu modernistycznym, który wyróżnia różnorodność materiałów wykończeniowych, duże przeszklenia oraz swobodnie kształtowana bryła budynku nieskrępowana dachem. Wnętrze domu posiada bardzo wyraźny podział na strefy dzienną, rekreacyjną, gospodarczą oraz nocną. Strefę dzienną tworzy przestronny salon połączony z dużą przeszkoloną jadalnią, w której znajduje się również przejście do kuchni. W kuchni poza dużą zabudową ścienną znajduje się długi blat roboczy oraz kącik śniadaniowy. Część dzienną z nocną łączy obszerny hol, w całości przeszklony od strony ogrodu. W części nocnej parteru zaprojektowano sypialnię gospodarzy z dwiema niezależnymi garderobami, gabinet, dwie łazienki, pralnię orz pomieszczenie gospodarcze. Atutem projektu jest rozległy taras biegnący wzdłuż tylnej elewacji budynku. Poddasze zostało zaprojektowane nad wydzieloną częścią parteru i składa się z dwóch mniejszych sypialni oraz łazienki. W budynku znajduje się także dwustanowiskowy garaż z wjazdem od strony elewacji bocznej, a nie frontowej jak to jest zazwyczaj. Garaż jest połączony z kotłownią dostosowaną pod ogrzewanie gazowe. Reprezentacyjny charakter budynku, sprawie, iż dom świetnie prezentuje się na dużych, podmiejskich działkach.

Projekt został
wycofany z oferty

W razie pytań prosimy o kontakt
z Centrum Obsługi Klienta tel: 71 715 20 60

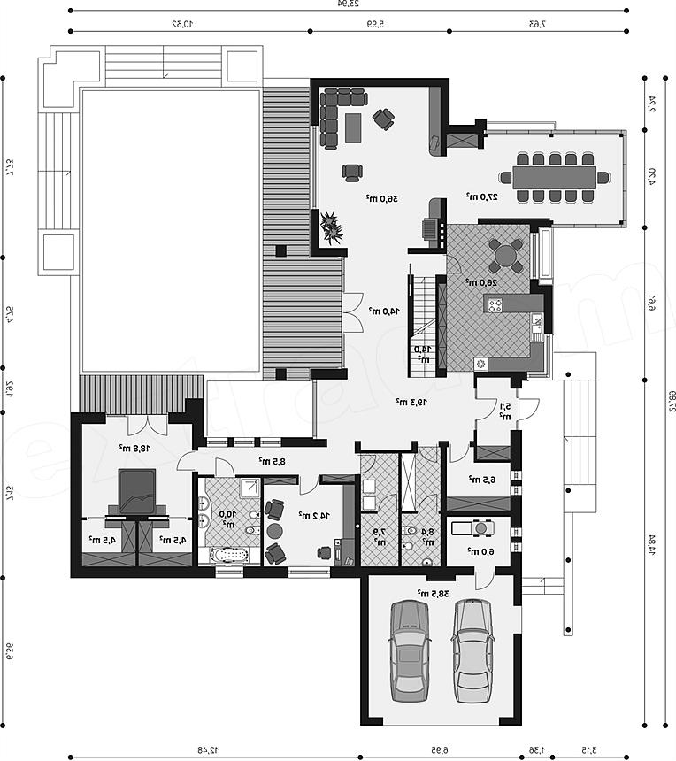
Rzut kondygnacji projektu Arkadia - Rzut parteru

1 wiatrołap: 5,1 m2
2 hall: 19,3 m2
3 kuchnia + jadalnia: 26 m2
4 jadalnia: 27 m2
5 pokój dzienny: 36 m2
6 hall: 14 m2
7 pomieszczenie gospodarcze: 6,5 m2
8 wc: 8,4 m2
9 pomieszczenie gospodarcze: 7,9 m2
10 korytarz: 8,5 m2
11 pokój: 14,2 m2
12 łazienka: 10 m2
13 pokój: 18,8 m2
14 garderoba: 4,5 m2
15 garderoba: 4,5 m2
16 schody: 14 m2
17 pomieszczenie gospodarcze: 6 m2
18 garaż dwustanowiskowy: 38,5 m2

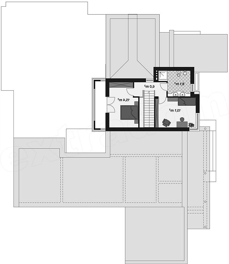
Rzut kondygnacji projektu Arkadia - Rzut 1 piętra

1 korytarz: 6 m2
2 pokój: 15,1 m2
3 łazienka: 8,1 m2
4 pokój: 15,4 m2

Usytuowanie domu na działce

Przekrój

Technologia budowy domu


Ściany: 2-warstwowe - pustak ceramiczny. Stropy: żelbetowe, wylewane. Dach: papa - dach płaski, (spadek około 2-3%). Ogrzewanie: gazowe, olejowe.

Elewacje

autor: Domy w Stylu

Projekty podobne do Arkadia BSA1216

Serwis prowadzi Extradom.plRegulaminPolityka prywatności