Opis projektu
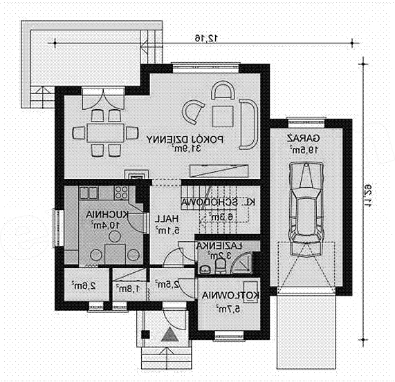
Nowoczesny dom dla 4-5 osobowej rodziny, z garażem dobudowanym do bryły domu, posiada mimo niewielkich rozmiarów sporo przestrzeni. Charakterystyczny front budynku z wysuniętą częścią parteru i łukowo zadaszonym wejściem, które prowadzi do przedsionka z garderobą. Naprzeciw - kotłownia i łazienka. Wygodna kuchnia (z kącikiem śniadaniowym i spiżarnią) sąsiaduje ze znajdującym się w głębi domu pokojem dziennym z kominkiem i wyjściem na szeroki, narożny taras. Część sypialna zawiera: trzy sypialnie (sypialnia małżeńska z możliwością wydzielenia garderoby) i dużą łazienkę. Taras nad wejściem nadaje domowi niebanalny wygląd.
