Projekt domu APS 013 + G LUA1071

Pow. użytkowa 152,5 m2 Kubatura 499 m3 Wysokość domu 8,12 m
Pow. zabudowy 249,5 m2 Min. szer. działki 20,34 m Kąt nach. dachu 36 st
Pow. dachu 213,1 m2
Projekt domu APS 013 + G progress

Opis projektu

Solidny, średniej wielkości dom, o proporcjonalnej sylwetce i funkcjonalnym układzie pomieszczeń, dla 4-6 osobowej rodziny. Wejście do domu w elewacji bocznej pozwala na umieszczenie od frontu obu pokoi. Z przedsionka wejście do garderoby i na wprost do hallu. Pokój dzienny z wykuszowymi oknami, połączony jest z jadalnią. Sąsiadująca duża kuchnia ma powierzchnię umożliwiającą wydzielenie spiżarni. Dodatkowy pokój lub gabinet znajduje się obok salonu. Na poddaszu: trzy sypialnie, garderoby i piękna łazienka. W piwnicy: kotłownia i pomieszczenie gospodarcze. Przy ścianie domu - wiata garażowa pod wydłużonym okapem dachu.

Projekt został
wycofany z oferty

W razie pytań prosimy o kontakt
z Centrum Obsługi Klienta tel: 71 715 20 60

Rzut kondygnacji projektu APS 013 + G - Rzut piwnicy

1 kotłownia: 14,8 m2
2 korytarz: 10,7 m2
3 pomieszczenie gospodarcze: 15 m2

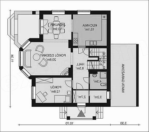
Rzut kondygnacji projektu APS 013 + G - Rzut parteru

1 wiatrołap: 2,7 m2
2 garderoba: 3,2 m2
3 hall: 8,5 m2
4 łazienka: 4,3 m2
5 pokój: 12,8 m2
6 pokój dzienny: 20,8 m2
7 jadalnia: 10,9 m2
8 kuchnia: 15,1 m2
9 schody: 5 m2

Rzut kondygnacji projektu APS 013 + G - Rzut poddasza

1 schody: 4,7 m2 (5,5 m2)
2 korytarz: 8,2 m2
3 łazienka: 8,2 m2 (11,9 m2)
4 pokój: 9,8 m2 (12,8 m2)
5 pokój: 16,2 m2
6 pokój: 16,8 m2
7 garderoba: 1,7 m2 (4,8 m2)
8 garderoba: 2,2 m2 (6 m2)

Usytuowanie domu na działce

Przekrój

Technologia budowy domu


Ściany: bloczki z betonu komórkowego + ocieplenie. Strop parteru: typu TERIVA. Strop poddasza: drewniany. Dach: drewniany, dwuspadowy. Pokrycie dachu: dachówka lub blacha. Ocieplenie poddasza: wełna mineralna ROCKWOOL. Tynk: mineralny.

Elewacje

autor: Archi-Projekt

Projekty podobne do APS 013 + G LUA1071

Serwis prowadzi Extradom.plRegulaminPolityka prywatności