Projekt domu Aleksandra Modern B 2-garaże WRD1845

Pow. użytkowa 189,1 m2 Wysokość domu 7,8 m
Pow. zabudowy 162,5 m2 Min. szer. działki 22,2 m Kąt nach. dachu 20 st
Projekt domu Aleksandra Modern B 2-garaże progress

Opis projektu

Wyjątkowy projekt - elegancki, prosty i funkcjonalny. Dom z serii energooszczędnych, zapewnia optymalny wariant jakości życia do kosztów zainwestowania w budowę. Bryła prosta, zwieńczona reprezentacyjnym dachem. Dom przeznaczony dla 4-6 os. rodziny. Przestronny parter jako otwarta część dzienna oraz wygodne piętro (pokoje z garderobami). W głębi usytuowany przestronny otwarty na ogród salon z kominkiem, łączy się narożnikowo z kuchnią i jadalnią. Taki układ zapewnia stały kontakt domowników. Na parterze znajduje się również pokój hobby/gabinet/pokój dla gości. Na piętrze po wliczeniu do powierzchni użytkowej garderób mamy 93,3m2, wygodna przestrzeń dla rodziny. Strefa wejścia głównego zaakcentowana jest formą nowoczesnej ramy. Taras delikatnie domknięty z dwóch stron, zadaszony balkonem - to idealne miejsce do wypoczynku. Dostępna jest również wersja Klasyk z dachem 2-spadowym (35o). Obie wersje występują z powiększoną kuchnią i jadalnią - skrzydło domu poszerzone o 1m (wersje B). Nad garażem do wyboru może być taras. Dom Aleksandra można połączyć w bliźniaka.

Projekt został
wycofany z oferty

W razie pytań prosimy o kontakt
z Centrum Obsługi Klienta tel: 71 715 20 60

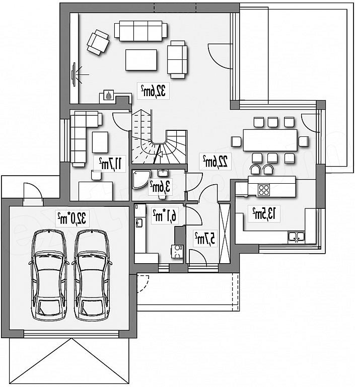
Rzut kondygnacji projektu Aleksandra Modern B 2-garaże - Rzut parteru

1 wiatrołap: 5,7 m2
2 pomieszczenie gospodarcze: 6,1 m2
3 łazienka: 3,6 m2
4 jadalnia: 22,6 m2
5 pokój dzienny: 32,6 m2
6 pokój: 11,7 m2
7 kuchnia: 13,5 m2
8 garaż dwustanowiskowy: 32 m2

Rzut kondygnacji projektu Aleksandra Modern B 2-garaże - Rzut 1 piętra

1 hall + schody: 12,4 m2
2 pokój: 12,8 m2
3 garderoba: 7,6 m2
4 pokój: 23,3 m2
5 łazienka: 5,1 m2
6 pokój: 19,3 m2
7 garderoba: 6,2 m2
8 łazienka: 11,5 m2

Usytuowanie domu na działce

Przekrój

Koszt budowy domu


Orientacyjny koszt budowy domu w stanie surowym zamkniętym bez instalacji: 254 000 zł.

Technologia budowy domu


Strop: gęstożebrowy Teriva I. Ściany zewnętrzne: pustaki ceramiczne 25cm + styropian 20cm. Pokrycie dachowe: dachówka ceramiczna.

Elewacje

autor: Horyzont Pracownia Projektowa

Projekty podobne do Aleksandra Modern B 2-garaże WRD1845

Serwis prowadzi Extradom.plRegulaminPolityka prywatności