Projekt domu Albert 2A wiata WRD1684

Pow. użytkowa 135,5 m2 Wysokość domu 6,58 m
Pow. zabudowy 147 m2 Min. szer. działki 23,9 m Kąt nach. dachu 33 st
Projekt domu Albert 2A wiata progress

Opis projektu

Albert - przytulny parterowy dom dla 3-4 osobowej rodziny. Albert 2 -wersja z poddaszem użytkowym (kąt nachylenia dachu 33°), posiada dodatkowe dwa pokoje i łazienkę i jest przeznaczona dla 3-6 mieszkańców. Prosta, dwuspadowa konstrukcja dachu i stropu oraz optymalne wykorzystanie przestrzeni ewentualnego poddasza wpływa na optymalizację kosztu uzyskania powierzchni użytkowej w budynku. Duże przeszklenia drzwi tarasowych z części dziennej i sypialni, mocno integrują dom z ogrodem i jednocześnie zwiększają przestronność wnętrza. Projekt Abert i Albert 2 występują w wariantach: bez wykusza w jadalni (A), z wykuszem (B), a każdy z nich może mieć wiatę na auto lub nie. Dokumentacja techniczna tej wersji jest już gotowa.

Projekt został
wycofany z oferty

W razie pytań prosimy o kontakt
z Centrum Obsługi Klienta tel: 71 715 20 60

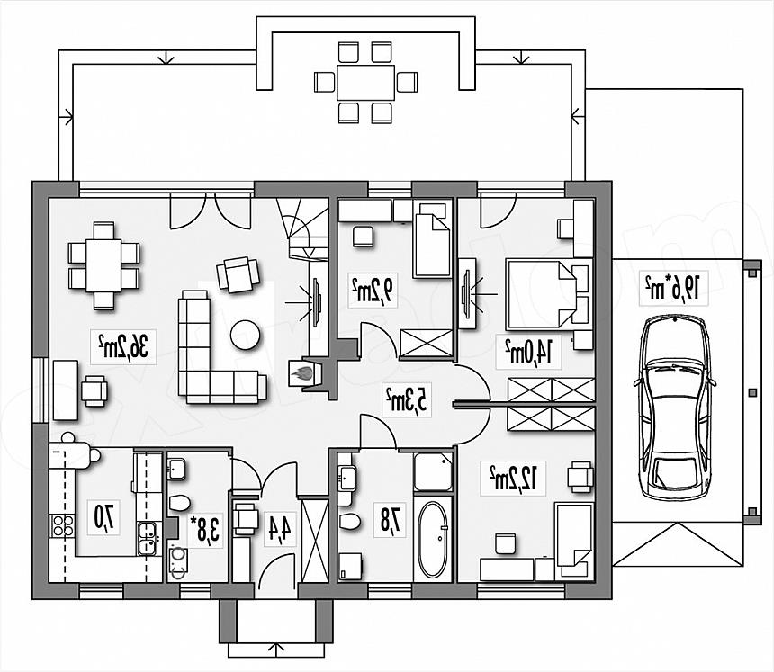
Rzut kondygnacji projektu Albert 2A wiata - Rzut parteru

1 wiatrołap: 4,4 m2
2 kotłownia + wc: 3,8 m2
3 kuchnia: 7 m2
4 pokój dzienny + jadalnia: 36,2 m2
5 korytarz: 5,3 m2
6 pokój: 9,2 m2
7 pokój: 14 m2
8 pokój: 12,2 m2
9 łazienka: 7,8 m2
10 wiata garażowa jednostanowiskowa: (19,6 m2)

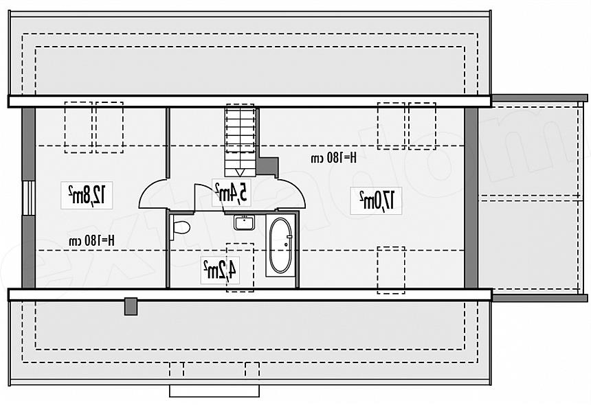
Rzut kondygnacji projektu Albert 2A wiata - Rzut poddasza

1 hall + schody: 5,4 m2
2 pokój: 12,8 m2
3 pokój: 17 m2
4 łazienka: 4,2 m2

Usytuowanie domu na działce

Przekrój

Koszt budowy domu


Orientacyjny koszt budowy domu w stanie surowym zamkniętym bez instalacji: 202 000 zł.

Technologia budowy domu


Strop: gęstożebrowy Teriva I. Ściany zewnętrzne: silikat 24 + styropian 14cm. Pokrycie dachowe: dachówka ceramiczna.

Elewacje

autor: Horyzont Pracownia Projektowa

Projekty podobne do Albert 2A wiata WRD1684

Serwis prowadzi Extradom.plRegulaminPolityka prywatności