Opis projektu
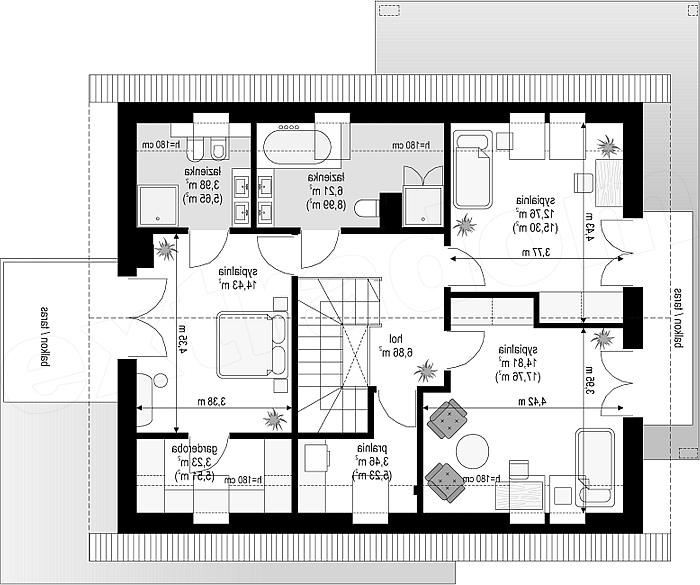
Projekt domu Albatros 2 jest wersją wariantową popularnego projektu „Albatros” z podwójnym garażem. Jest to prosty w budowie, niedrogi dom z poddaszem użytkowym dla 4-5 osobowej rodziny. Bryła budynku została zaprojektowana na planie prostokąta - do głównej bryły dobudowany jest częściowo wchodzący w nią garaż na dwa auta. Poddasze wieńczy symetryczny dwuspadowy dach. Projekt podporządkowano połączeniu ekonomicznych i funkcjonalnych rozwiązań, z nowoczesną i ciekawą estetyką budynku. Dom ma w sobie „to coś” : ciekawie dobrane materiały, dobre proporcje brył, właściwą wielkość okien, no i przede wszystkim – funkcjonalne, rozsądnie zaplanowane wnętrze. Parter domu, to przestrzeń dzienna, z wygodnym salonem, centralnym holem z ozdobnymi schodami, częściowo otwartą na salon kuchnią, oraz dodatkowy pokój - gabinet lub sypialnia gościnna i część gospodarcza, czyli garaż i kotłownia. Na poddaszu, dzięki wysokim ściankom kolankowym, mieszczą się trzy przestronne sypialnie, w tym sypialnia rodziców z osobną łazienka i garderobą. Dodatkowo przewidziano tu też miejsce na pralnię – ewentualnie schowek. „Albatros” mimo niewielkiej powierzchni jest przestronny i wygodny i zapewni komfortowe warunki do życia nawet licznej rodzinie. Energooszczędne rozwiązania – dobre docieplenia, zwarta bryła budynku - pozwolą ograniczyć koszty przyszłej eksploatacji, a prostota konstrukcji domu zapewni mniej stresów podczas budowy.
