Projekt domu Alan IV G2 multi-comfort WRC2433

Pow. użytkowa 137,75 m2 Kubatura 585,75 m3 Wysokość domu 6,87 m
Pow. zabudowy 270,06 m2 Min. szer. działki 24,57 m Kąt nach. dachu 28 st
Pow. dachu 345 m2 EUco 59 kWh/(m2*rok)
Projekt domu Alan IV G2 multi-comfort progress

Opis projektu

Alan IV G2 MULTI-COMFORT to elegancka propozycja dla wielbicieli nowoczesnych rozwiązań, połączonych z magicznym urokiem detali. Ciekawa bryła budynku, szykownie komponuje się z białym tynkiem i ciepłym odcieniem drewna. Przemyślany

Projekt został
wycofany z oferty

W razie pytań prosimy o kontakt
z Centrum Obsługi Klienta tel: 71 715 20 60

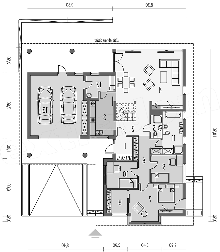
Rzut kondygnacji projektu Alan IV G2 multi-comfort - Rzut parteru

1 wiatrołap: 4,54 m2
2 hall: 13,75 m2
3 kuchnia: 11,32 m2
4 pokój dzienny + jadalnia: 41,11 m2
5 łazienka: 3,05 m2
6 korytarz: 9,56 m2
7 pokój: 18,84 m2
8 garderoba: 5,6 m2
9 pokój: 10,53 m2
10 pokój: 9,66 m2
11 łazienka: 9,79 m2
12 kotłownia: 5,98 m2
13 garaż dwustanowiskowy: 38,83 m2

Rzut kondygnacji projektu Alan IV G2 multi-comfort - Rzut poddasza

1 poddasze do adaptacji: 42,04 m2

Usytuowanie domu na działce

Przekrój

Koszt budowy domu


Orientacyjny koszt budowy domu w stanie surowym zamkniętym bez instalacji: 356 816 zł.

Technologia budowy domu


Ściany zewnętrzne: murowane, dwuwarstwowe, bloczki keramzytobetonowe Box Term firmy TERMAT 24 cm, ocieplenie wełna mineralna ISOVER 25 cm. Ściany wewnętrzne: nośne i działowe murowane, bloczki keramzytobetonowe Box Term firmy TERMAT 24 cm i 10 cm. Strop: gęstożebrowy Teriva. Dach: konstrukcja drewniana, ocieplenie wełna mineralna 30 cm, dachówka ceramiczna lub cementowa. Inne: w przypadku adaptacji poddasza na cele mieszkalne - schody wewnętrzne drewniane. Ogrzewanie: kocioł gazowy kondensacyjny, rozprowadzenie ciepła: grzejniki. Wentylacja: grawitacyjna. Elewacje: tynk cienkowarstwowy mineralny, okładzina kamienna. Stolarka: drewniana, PVC lub aluminiowa, drzwi wejściowe i brama garażowa firmy Hörmann.

Elewacje

autor: Pracownia Projektowa ARCHIPELAG

Projekty podobne do Alan IV G2 multi-comfort WRC2433

Serwis prowadzi Extradom.plRegulaminPolityka prywatności