Opis projektu
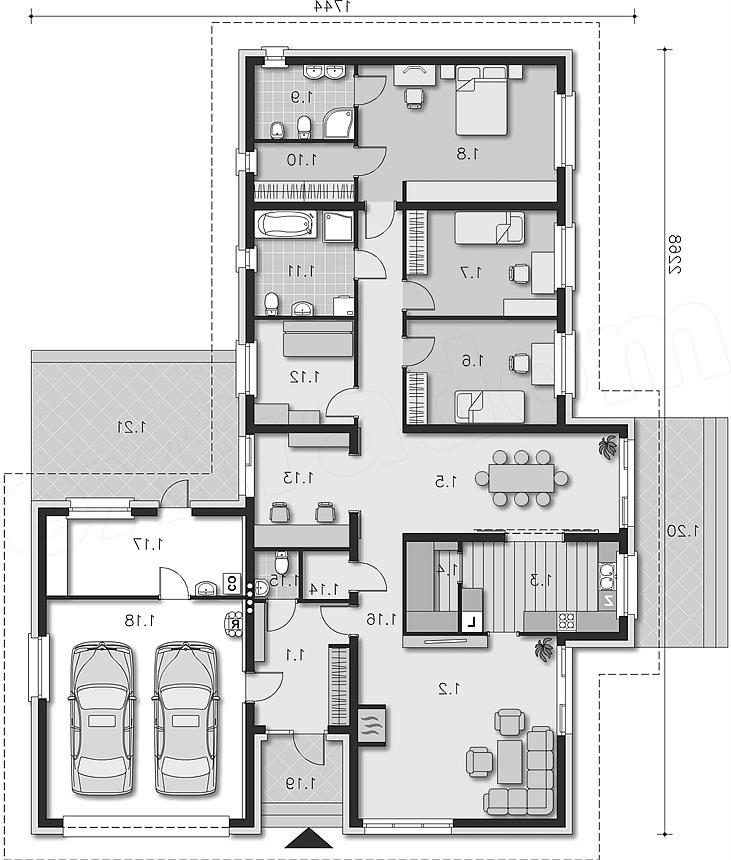
Energooszczędny dom, który, mimo że jest parterowy imponuje przestrzenią dzięki wysokim oknom w salonie i jadalni. Wersja w której powiększony został garaż oraz jadalnia i kuchnia. Projekt idealny na działki z wjazdem od południa. Mamy tutaj cztery sypialnie, z których jedna ma własną garderobę i łazienkę. Dodatkowo jest również gabinet, duża kotłownia, pomieszczenie gospodarcze i spiżarnia.
